Installation Guide

INSTALLATION AND SAFETY INSTRUCTIONS
FOR YOUR SAFETY
WARNING: BE SURE THE ELECTRICITY TO THE WIRES
YOU ARE WORKING ON IS SHUT OFF; EITHER THE FUSE IS
REMOVED OR THE CIRCUIT BREAKER IS SHUT OFF.
GENERAL
You don’t need special tools to install this fixture. Be sure to
follow the steps in the order given. Under no circumstances
should a fixture be hung on house electrical wires, nor should a
swag type fixture be installed on a ceiling which contains a
radiant type heating system. Read instructions carefully. If you
are unclear as to how to proceed, consult a qualified electrician.
NOTE: Proper wiring is essential for the safe operation of this
fixture.
FIXTURE ASSEMBLY
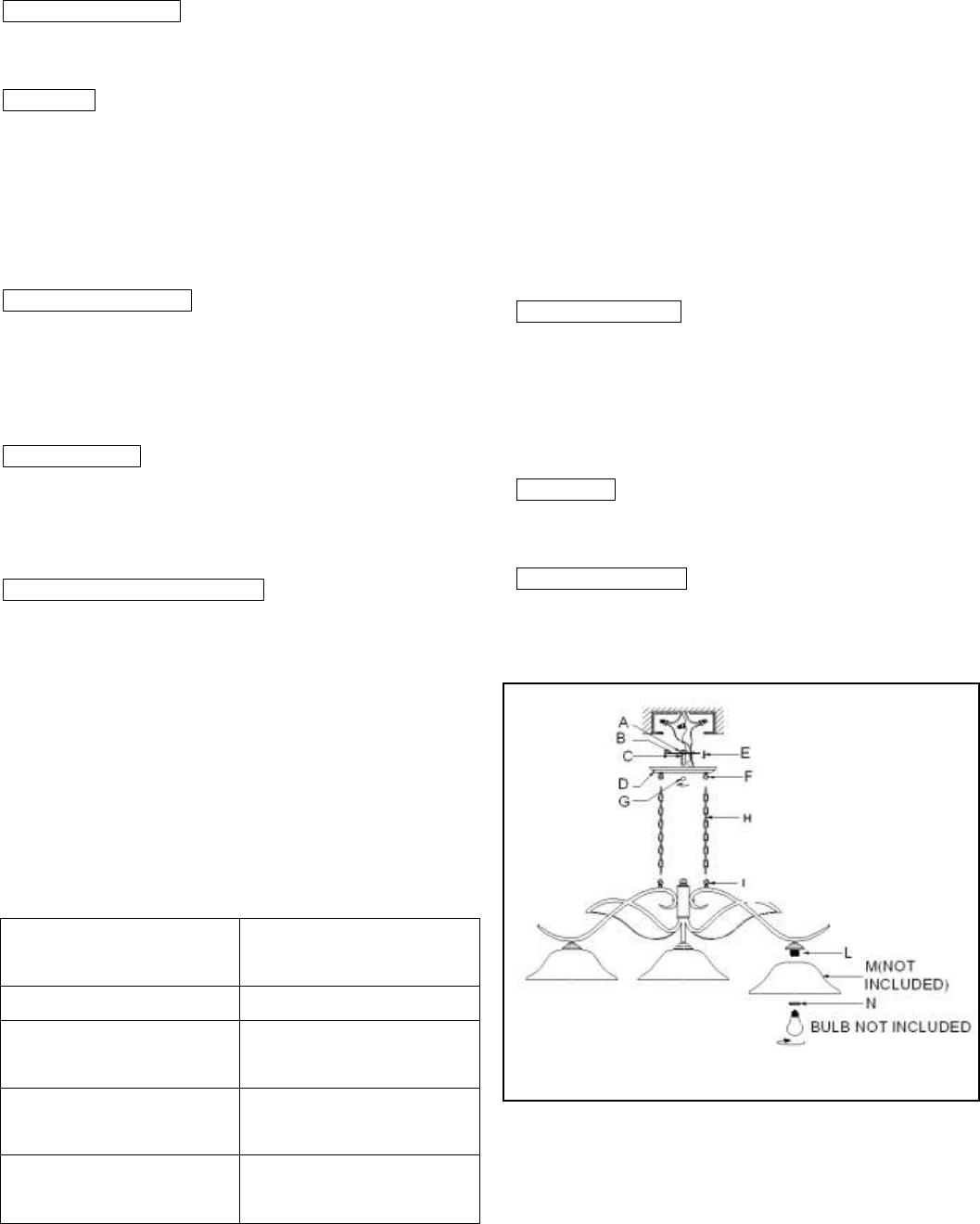
Carefully remove the fixture from the carton and check that all
parts are included as shown in figure. Be careful not to misplace
any of the screws or parts, which are needed to install this
fixture.
STEP 1: connect the loop(F) to the chain(H).
connect the loop(I) to the chain(H).
INSTALLATION
IMPORTANT: Do not attach fixture directly to outlet box.
STEP 1: Thread nipple (C) into the center hole in the mounting
bar (B), then tighten with the hex nut (A).
.STEP 2: Secure mounting bar (B) to outlet box with the outlet
box screws (E).
GROUNDING INSTRUCTIONS
STEP 1: Insert the green grounding screw into the hole with two
raised dimples on the mounting bar. Wrap the ground wire from
the fixture (if supplied) around the green grounding screw, then
connect it to ground wire from the outlet box (if not fixed on the
outlet box) using a wire connector (not supplied). If ground wire
from the fixture is not supplied, wrap the ground wire (if not fixed
on the outlet box) from the outlet box around the green
grounding screw and tighten it.
NEVER CONNECT GROUND WIRE TO BLACK OR WHITE
POWER SUPPLY WIRES.
STEP 2: Take note of the color of the wire(s) on your fixture.
Identify which group your fixture wire(s) falls into and
connect the wires according to the directions below:
*NOTE: When parallel wire (SPT-I & SPT-2) is used, the tracer
wire is square shaped or ridged and the less tracer wire is round
in shape or smooth (seen best when viewed from wire end.)
STEP 3: Take your fixture wire(s) from group A and place evenly
against the black wire from the outlet box. Do NOT
twist wires together before using wire connectors.
STEP 4: Fit a wire connector (not supplied) over the wires and
screw the connector clockwise until you feel firmness.
STEP 5: Try gently to pull the connector off the wires. If you can
pull the connector off, carefully re-do steps 3 and 4 as
above and check again for a firm connection.
STEP 6: Connect the fixture wire from group B to the white wire
from the outlet box in the same manner. Make sure no
bare wires can be seen outside wire connectors.
FINAL ASSEMBLY
STEP 1: After wires are connected, tuck them carefully inside
outlet box. Raise canopy (D) allowing for nipple (C) to protrude
through the holes on canopy (D), and secure with ball nuts (G).
STEP 2: Place shade (M) over socket (L), then secure with
retaining ring (N). (Shade is not included)
STEP 3: Install light bulb. (Please do not exceed the maximum
capacity recommended on the socket.)
CLEANING
To clean, wipe fixture with a soft cloth. Clean glass with a mild
soap. Do not use abrasive materials such as scouring pads or
powders, steel wool or abrasive paper.
ORDERING PARTS
Keep this sheet for future reference, and in case you need to
order replacement parts. Be sure to use exact wording from
illustration when ordering parts.
ITEM NO. 126
GROUP A: Connect to Black
House Wire
GROUP B: Connect to White
House Wire
BLACK
WHITE
*PARALLEL WIRE (round &
smooth)
*PARALLEL WIRE (square &
ridged)
WHITE OR GREY WITH
TRACER
WHITE OR GREY WITHOUT
TRACER
BROWN GOLD OR BLACK
WITHOUT TRACER
BROWN, GOLD OR BLACK
WITH TRACER

