Instructions / Assembly

page 2
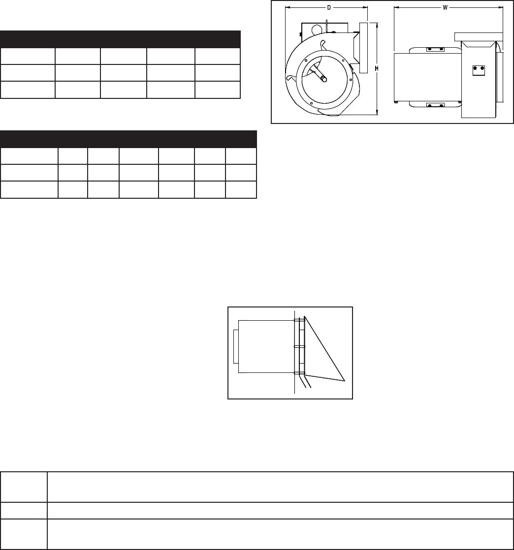
Figure 1
UNIT SPECIFICATIONS (See Table 1 and Figure 1)
SIDEWALL VENT HOODS (Model SWH-1)
TheventhoodshouldbechosenthatmatchestheoutletsizeofthePowerVenter.(SeeFigure2)
NOTE:Whenusingdifferentsizesconsiderreducersandspecicsizepipewhendeterminingequivalent
length of vent pipe. Sidewall vent hoods are available in the following sizes:
CK- 61: For operation with all 120VAC oil-fired systems. Includes draft proving switch, adjustable
electronicpostpurgetimer,RJRisolationrelay,andWMO-1secondarysafetyswitch.
CK-62: Same as CK-61, except has thermally activated post purge.
CK-63: For operation with all 120VAC oil-fired systems. Includes draft proving switch, adjustable
electronicpostpurgetimer,andWMO-1secondarysafetyswitch.
Figure 2
SWH-1-3-3"
SWH-1-4-4"
SWH-1-5-5"
SWH-1-6-6"
SWH-1-8-8"
CONTROL KITS
The following Control Kits can be used to common vent multiple appliances with one PVO unit:
SYSTEM OPERATION
Thethermostat(wallthermostat,oraquastat)callsforheatandenergizesarelaywhichactivatesthe1.
power venter. After the venter motor has come up to speed, the pressure switch closes. This completes the
circuit to the burner and allows the burner to fire.
After the heating requirement has been satisfied, the thermostat circuit will open and 2.
de-activate the burner and power venter circuit.
The power venter continues to operate for a period of time after the burner has shut off to purge 3.
remaining flue gases.
UNIT DIMENSIONS (INCHES)
MODEL H W D I/O*
PVO-300 7. 5 0 9.25 7.0 0 4/4
PVO-600 8.75 9.75 8.50 4/4
ELECTRICAL RATINGS
MODEL VAC Hz RPM WATT AMP TP**
PVO-300 120 60 3000 145 2.1 YES
PVO-600 120 60 3000 167 1.5 YES
Table 1
*Inlet and outlet diameter.
**Thermally protected motor.










