Installation Sheet

1
Installation Instructions for
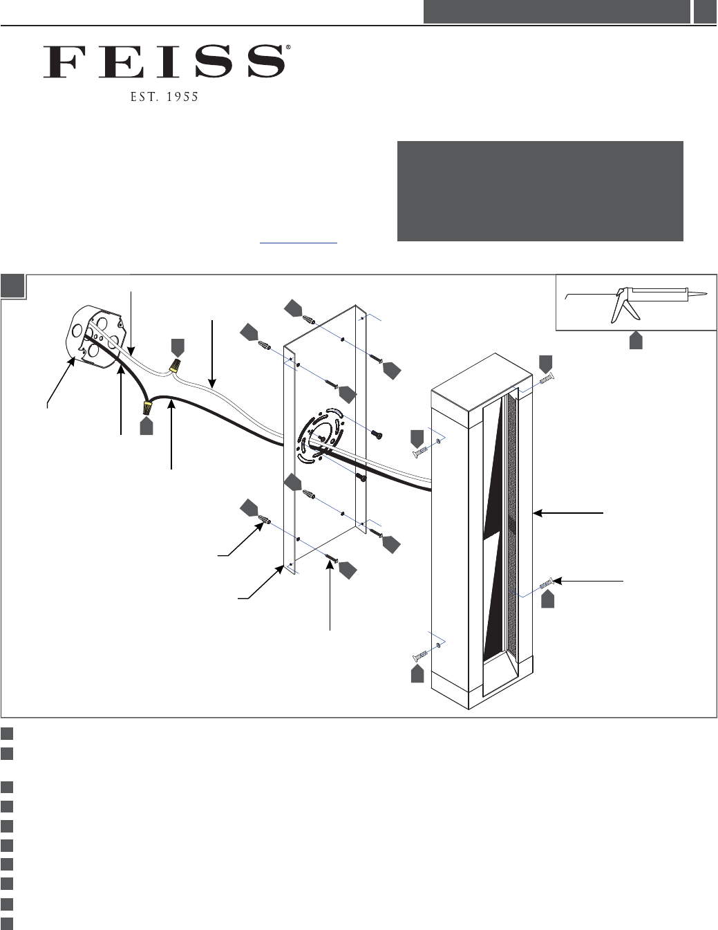
For Models Only:OL11602, OL11603 Temporarily install the mounting plate to the junction box.
For Models Only:OL11602, OL11603 Mark the anchor hole locations on the mounting plate and remove the mounting
plate.
For Models Only:OL11602, OL11603 Drill appropriate size holes at the marked locations and install the anchors.
Secure the mounting plate to the junction box.
For Models Only:OL11602, OL11603 Screw the anchor screws into the anchors.
Connect the fixture to a suitable ground in accordance with local electrical codes.
Connect the white driver wire to the neutral power line wire with a wire nut.
Connect the black driver wire to the hot power line wire with a wire nut.
Mount the fixture base onto the mounting plate and secure it with the fixture screws.
For wet locations, caulk around the base of the fixture with waterproof construction sealant.
1
2
3
1A
4
5
6
GP I :ENERAL RODUCT NFORMATION
These fixtures are intended to be installed utilizing compliantNEC
junction boxes.
This product is safety listed for wet locations.
For a complete list of dimmers, visit out website at www.Feiss.com
CAUTION RISK OF FIRE-
This product must be installed in accordance with
the applicable installation code by a person familiar
with the construction and operation of the product
and the hazards involved.
Use minimum 90°c supply conductors.
7
Mattix ADA Outdoor Wall (LED)
1.0
OL11601_OL11602_O 11603-LEDL
O 11601, O 11602, O 11603-LEDLLL
Wall
8
9
10
5
5
JUNCTION BOX
HOT
WIRE
WHITE WIRE
BLACK
WIRE
MOUNTING PLATE
ANCHOR
SCREW
9
ANCHOR
FIXTURE SCREW
10
4
4
NEUTRAL WIRE
FIXTURE
4
4
5
5
5
5
9
9
9
7
8




