Installation Instructions

2
1-800-888-2418 | www.feeneyinc.com
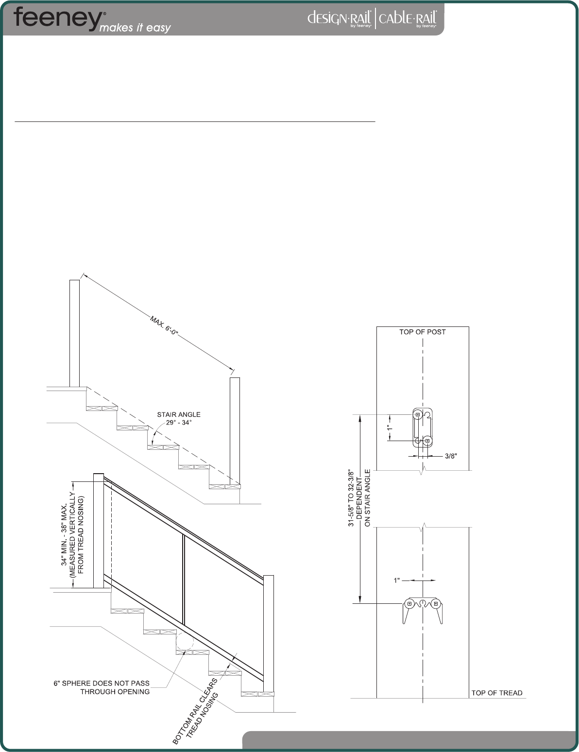
Note: Stair Rail Kits can accommodate stairways with 6-ft maximum between posts, and the pickets are pre-drilled for
cables to fit a stair slope of between 29 and 34 degrees. Stair Rail Kits are designed to finsh at a height of 34”-38”,
with the top rail acting as a graspable handrail.
Stair Install: Step 1 – Prepare post for Rail Connecting Brackets (RCBs)
a) RCB location will be dependent on newel post locations in relation to the top and bottom stair treads.
It is important to place the top and bottom rail so that the final assembly will meet the following conditions:
- The bottom rail will not rest on the stair tread nosing.
- The bottom rail and stair treads do not create an opening that allows a 6” sphere to pass through.
- The top rail will finish at a minimum height of 34” and a maximum height of 38”.
Note: These conditions are typical for residential stair code compliance, but may vary depending on
local code requirements. Be sure to check with your local building code authority regarding
code compliance requirements in your project location.
Following these conditions (see Figures 1.1 & 1.2), locate the top and bottom RCB locations, mark and
pre-drill the posts for the Rail Connecting Brackets (RCBs) attachment screws. Each RCB requires 2
screws. (see Figure 1.3)
STAIR RAILING INSTALLATION:
(Figure 1.1)
(Figure 1.3)
(Figure 1.2)





