Instruction Guide

2
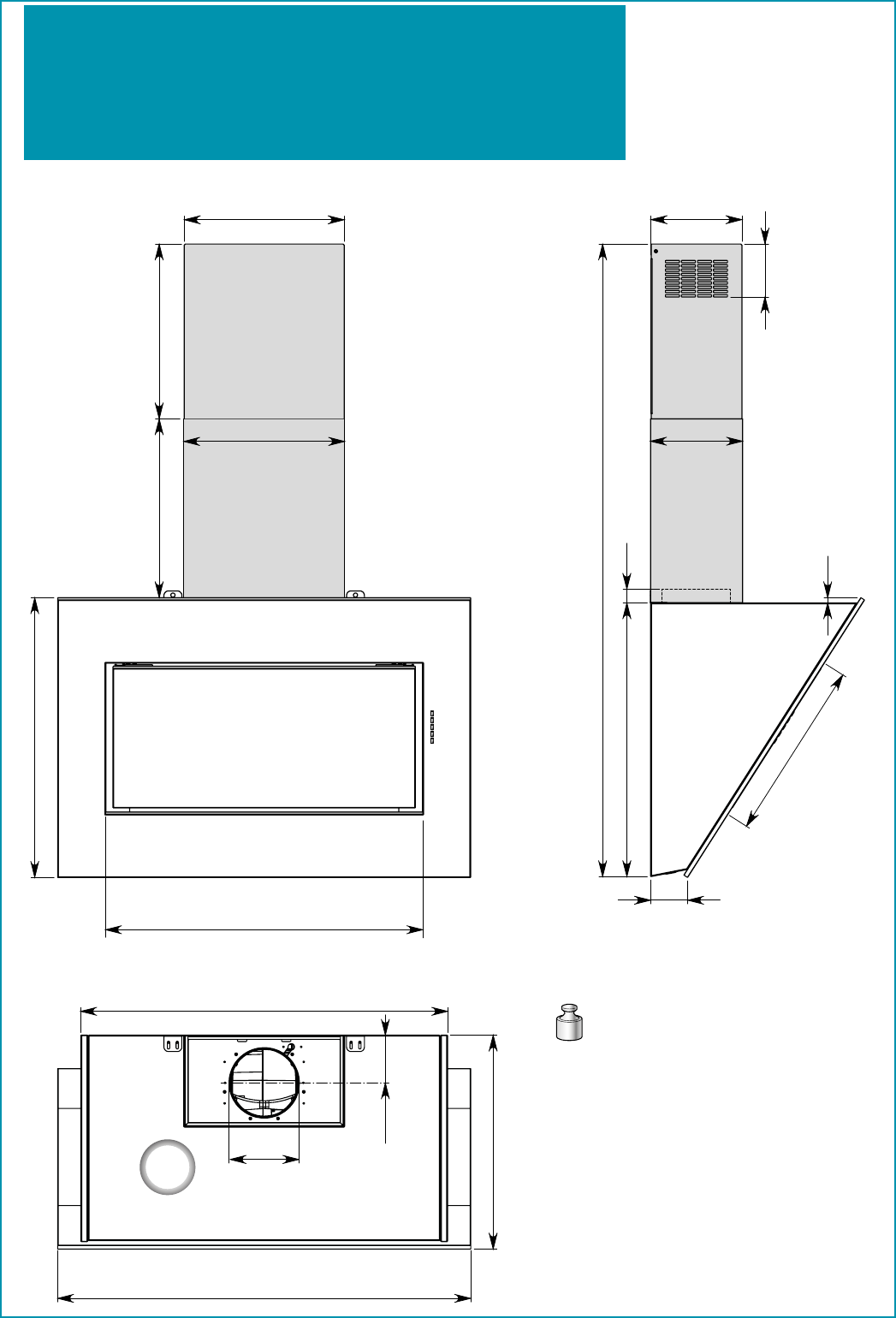
390 (Quasar 60) - 690 (Quasar 80)
690 (Quasar 90) - 990 (Quasar 120)
598 (Quasar 60) - 798 (Quasar 80)
898 (Quasar 90) - 1198 (Quasar 120)
498 (Quasar 60) - 798 (Quasar 80)
798 (Quasar 90) - 1098 (Quasar 120)
608
465
389
max 380
348
597 29
81
115
198
max 1375
150
115,5
390
11
200
350
Quasar 60: 26 kg
Quasar 80: 31 kg)
Quasar 90 (A+): 33 kg (33 kg)
Quasar 120: 41 kg
Quasar TOP 90 (A+): 28 kg (28 kg)
Quasar TOP 120: 37 kg
800
m
3
/h
IT - CAMINO OPZIONALE
UK - OPTIONAL CHIMNEY
DE - KAMIN ALS ZUBEHÖRXX
FR - CHEMINÉE EN OPTIONXX
ES - CHIMENEA OPCIONAL
RU - ДОПОЛНИТЕЛЬНЫМ ДЫМОХОДОМ
PL - OPCJONALNYM KANAŁEM KOMINOWYM
NL - OPTIONELE SCHOORSTEEN
PT - CHAMINÉ OPCIONAL
DK - VALGFRI KAMIN
SE - RÖKGÅNG SOM TILLVAL
FI - VALINNAISELLA POISTOPUTKELLA
NO - VALGFRI SKORSTEIN










