User's Manual
Table Of Contents
- 1. Before You Start...
- 2. Cooker Overview
- 3. Using the Glide-out Grill™
- 4. The Multifunction Oven
- 5. The Steam Cavity
- 6. Cleaning Your Cooker
- 7. Troubleshooting
- 8. Installation
- Dear Installer
- Safety Requirements and Regulations
- Provision of Ventilation
- Location of Cooker
- Positioning the Cooker
- Moving the Cooker
- Lowering the Two Rear Rollers
- Completing the Move
- Fitting the Stability Bracket
- Repositioning the Cooker Following Connection
- Levelling
- Electrical Connection
- Connection in New Zealand
- Fixed Wiring
- Final Checks
- Final Fitting
- Customer Care
- 9. Servicing
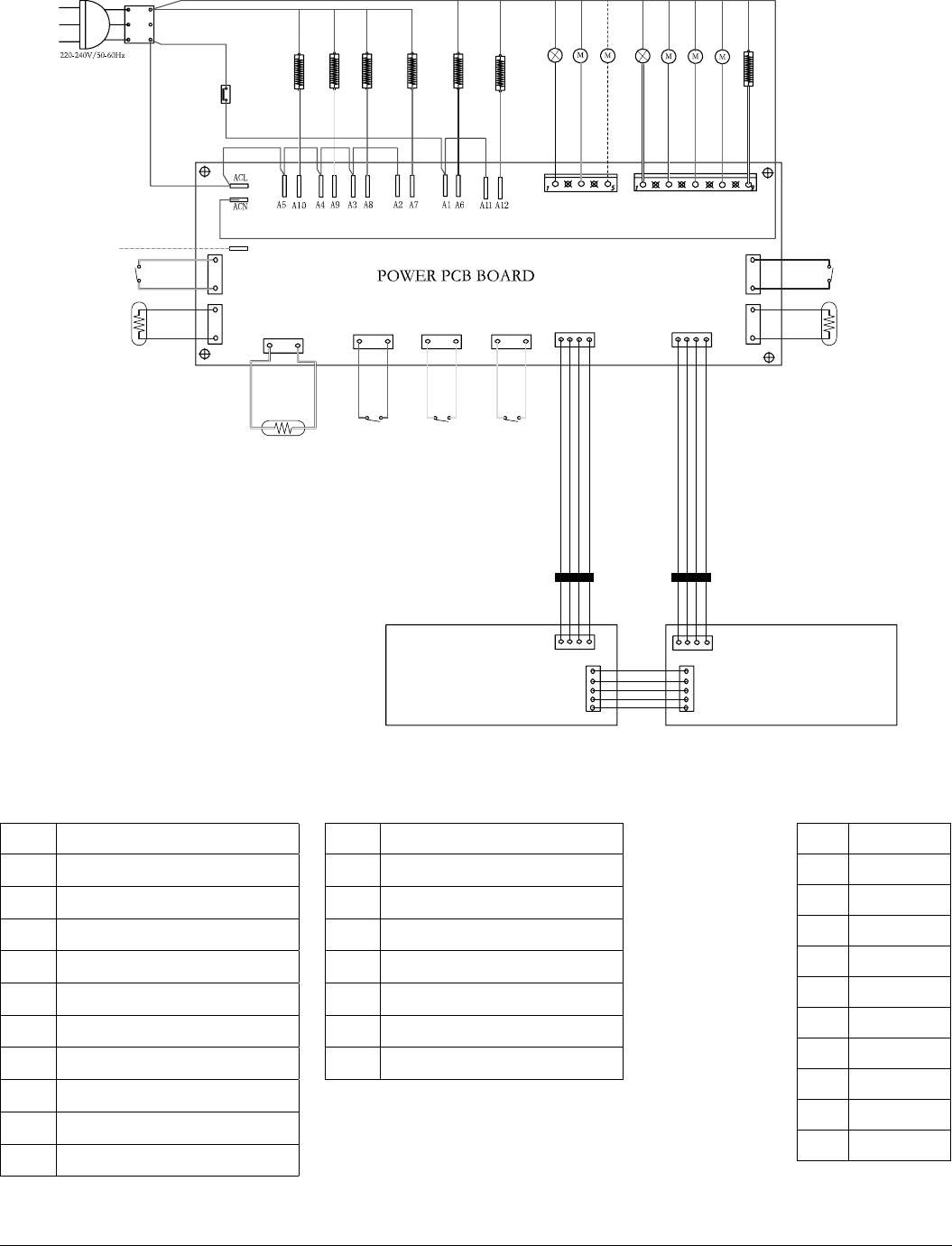
- 10. Circuit Diagram
- 11. Technical Data

49
Top Inner Element
Fan Element
Top Outer Element
Base Element
Water Boiler Element
Staem Oven Top Element
11 Fn Oven Lamp
11 Fn Oven Fan
Rotisserie(Not Used)
Steam Oven Lamp
Waer Pump In
Water Pump Out
Steam Cooling Fan
Steam Base Element
120°C Thermal Trip
Con 15
Con 2
Con 7
Con 5
Con 10
Con 8Con 1
Con 4
Con 6Con 3
Connector P2
Connector P1
Protective Earth
PE
11 Funtion UI (X43)
Steam Oven UI (X44)
X42
A
N
Water Boiler
Sensor
X46
X45
Water Tank
Sensor
Water Low
Sensor
X47
Water High
Sensor
X48
MF Oven Temp
Sensor
X49
X50
MF Oven Door
Sensor
Steam Oven Temp
Sensor
X51
X52
Steam Oven Door
Sensor
X27
X11
X09
X10
X08
X53
X54
X31
X16
X55
X56
X57
X58
X59
br
br
br
b
wy
rbk
r
br
b
g
b
w
w
g/y
b
b
y
y
y
y
w
w
bk
bk
bk
bk
bk
bk
orbk
wwrrw
b
Power PCB
Key
The connections shown in the circuit diagram are for single-phase. The ratings are for 230 V 50 Hz.
Code Description
X43
User Interface (UI) MF Oven
X44
User Interface (UI) Steam Cavity
X45
Water Boiler Sensor
X46
Water Tank Switch
X47
Water Sense (Low)
X48
Water Sense (High)
X49
MF Oven Temperature Sensor
X50
MF Oven Door Sensor
X51
Steam Cavity Temeprature Sensor
X52
Steam Cavity Door Sensor
Code Description
X53
Water Boiler Element
X54
Steam Cavity Top Element
X55
Steam Cavity Light
X56
Water Pump In
X57
Water Pump Out
X58
Steam Cavity Cooling Fan
X59
Steam Cavity Base Element
Code Colour
b
Blue
br
Brown
bk
Black
or
Orange
r
Red
v
Violet
w
White
y
Yellow
g/y
Green/Yellow
gr
Grey