User's Manual
Table Of Contents

44
P095199
2
P2
P1
1
P095199
2
P2
P1
1
P095199
2P2
P1
1
2146
br bbbb
r
b
b
r
b
b
br
v
bk
bk
v
v
br
y
b
y
y
y
br
b
br
b
br
b
bk
b
g/y
v
y
y
or
or
g/y
r
r
bk
br
br
y
or
b
bk
bk
br
b
r
b
b
v
b
b
r
r
r
v
y
y
y
b
r
b
r
b
b
bbr br
br
b
br br b
br
v
y
v
br
y
br
or
br
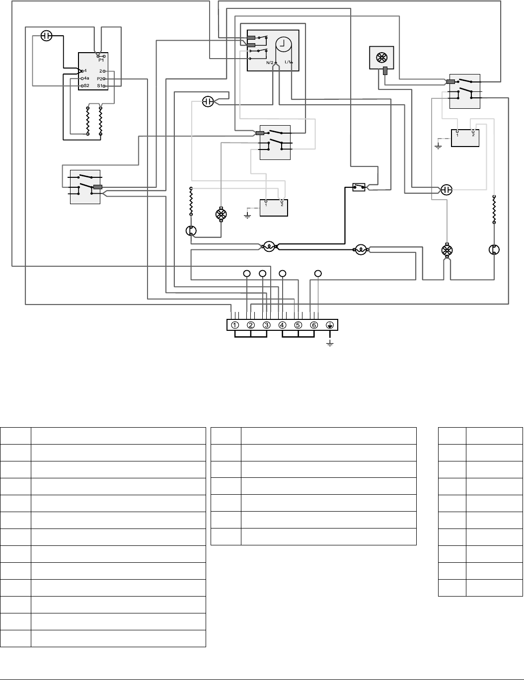
E
A2
C
A1
AN
H
G1
B3
B4
B2
B1
D3
J
G2
H
F
D1
J
D2
D4
K
J
A3
Key
T
he connections shown in the circuit diagram are for single-phase. The ratings are for 230 V 50 Hz.
Code Description
A1 Grill front switch
A2 Grill energy regulator
A3 Grill elements
B1 Left-hand oven front switch
B2 Left-hand oven thermostat
B3 Left-hand oven fan
B4 Left-hand oven fan element
C Clock
D1 Right-hand oven front switch
D2 Right-hand oven thermostat
Code Description
D3 Right-hand oven fan
D4 Right-hand oven fan element
F Oven light switch
G1 Left-hand oven light
G2 Right-hand oven light
H Thermal cut-out
J Neon
K Cooling fan
Code Colour
b Blue
br Brown
bk Black
or Orange
r Red
v Violet
w White
y Yellow
g/y Green/yellow
Key
The connections shown in the circuit diagram are for single-phase. The ratings are for 230 V 50 Hz.
Oven
Code Description
A1
Grill front switch
A2
Grill energy control
A3
Grill elements
B1
Left-hand oven front switch
B2
Left-hand oven thermostat
B3
Left-hand oven fan
B4
Left-hand oven element
C
Clock
D1
Right-hand fan oven front switch
D2
Right-hand fan oven thermostat
D3
Right-hand oven fan
D4
Right-hand oven element
Code Description
F
Oven light switch
G1
Left-hand oven light
G2
Right-hand oven light
H
Thermal cut-out
J
Neon
K
Cooling fan
Code Colour
b
Blue
br
Brown
bk
Black
or
Orange
r
Red
v
Violet
w
White
y
Yellow
g/y
Green/yellow