Owner's manual

Problem/Problema/Problème
Cause/Causa/Cause
Action/Solución/Correctif
Leaks underneath handle.
Goteo debajo de la manija.
Fuites sous la manette.
Retainer nut (5) has come loose.
Tuerca de retención (5) se ha aflojado.
Écrou de serrage (5) s’est desserré.
Tighten the retainer nut (5).
Apriete la tuerca de retención (5).
Serrer écrou de serrage (5).
Aerator (14) leaks or has an inconsistent
water flow pattern.
El aireador (14) gotea o el chorro de agua
está irregular.
Le brise-jet (14) fuit ou la diffusion des jets
qui s’en écoulent n’est pas uniforme.
Aerator (14) is dirty or misfitted.
El aireador (14) está sucio o mal puesto.
Le brise-jet (14) est mal ajusté ou sale.
Unscrew the aerator (14) to check rubber packing or
replace the aerator.
Destornille el aireador (14) para chequear el empaque
de caucho o reemplace el aireador.
Dévisser le brise-jet (14) pour vérifier le joint en
caoutchouc ou remplacer le brise-jet.
Trouble-Shooting/Guía de Solucionar Problemas/Dépannage
If you've followed the instructions carefully and your faucet still does not work properly, take these corrective steps.
Si usted ha seguido las instrucciones cuidadosamente y su grifo todavía no funciona correctamente, sigue estos pasos
correctivos.
Si vous avez suivi attentivement les instructions et que votre robinet ne fonctionne toujours pas correctement, apporter
les correctifs suivants.
Need Help? Please call our toll-free Customer service line at 1-888-328-2383 or WWW.DANZE.COM for additional assistance or service.
Requiere asistencia? Favor llamar a nuestro servicio a clientes sin costo al 1-888-328-2383 o WWW.DANZE.COM para asistencia adicional o servicio.
Besoin d’aide? Veuillez communiquer avec notre service à la clientèle au numéro sans frais 1-888-328-2383 ou WWW.DANZE.COM pour obtenir du
service ou de l’aide additionnels.
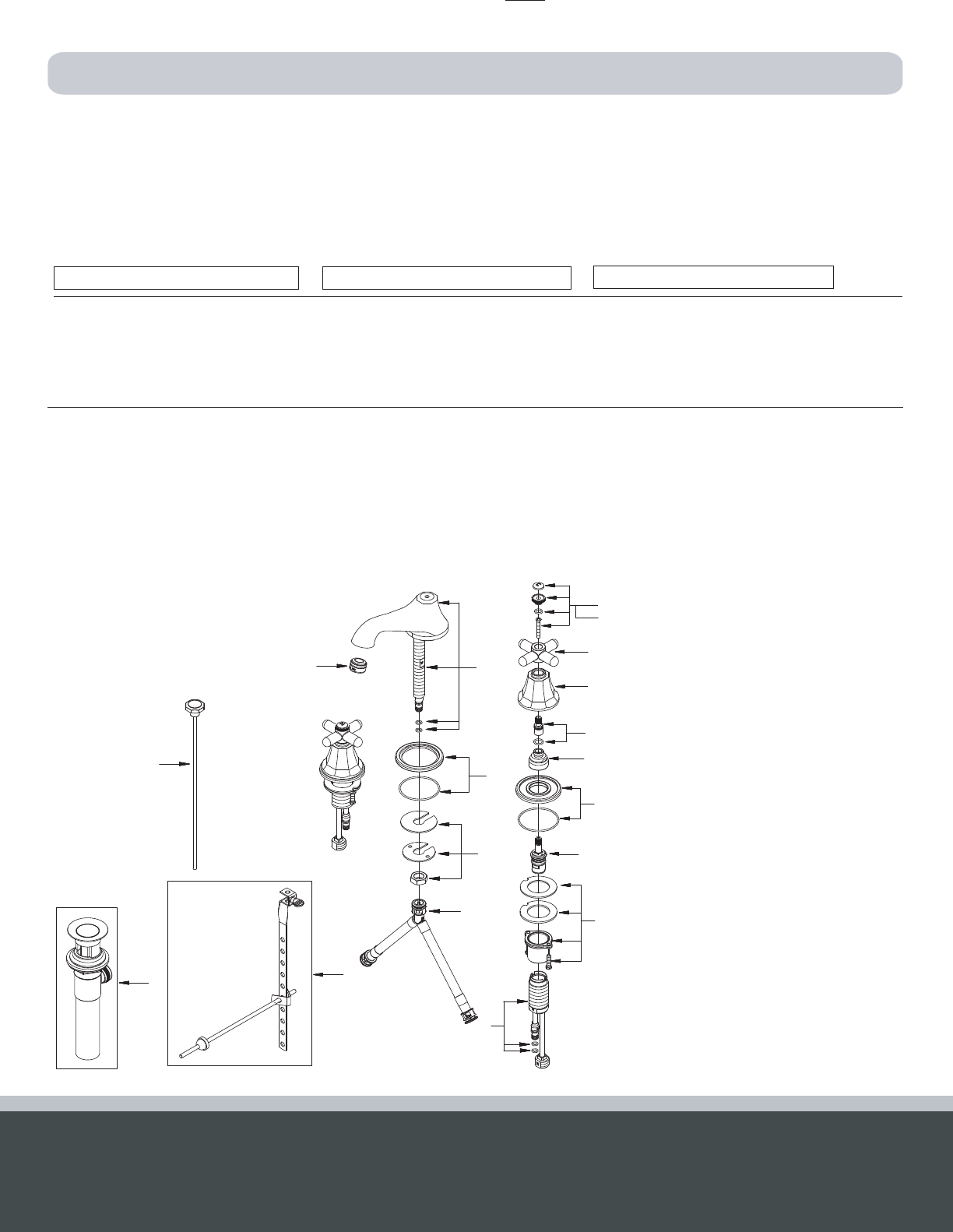
1-a.
1-b.
2.
3.
4.
5.
6.
8.
7.
10.
11.
12.
13.
14.
9.
15.
D304066
16.
17.







