Installation instructions

36
Dolce, Corrado
17-Feb-2016
Released
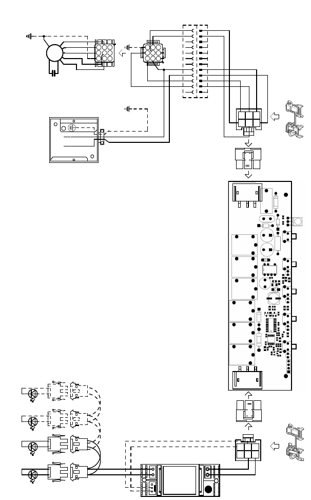
Wiring Diagram










