Installation instructions

Version 07/11 - Page 4
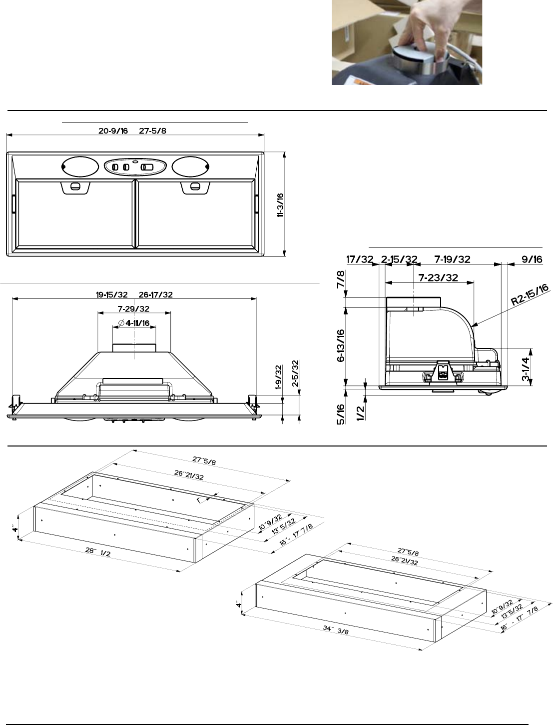
SIDE VIEW / LA PERSPECTIVE DE CÔTÉ
FRONT VIEW / LA PERSPECTIVE DE FRONT
BOTTOM VIEW / LA PERSPECTIVE DE BAS
Standard Liner 36 Stainless (LINE36ST)
designed for 36” wide installations
Cadre Standard 36 Axier Inoxydable (LINE36ST)
peut être employée les hottes encastrable sur mesure de 36"
Standard Liner 30 Stainless (LINE30ST)
designed for 30” wide installations
Cadre Standard 30 Axier Inoxydable (LINE30ST)
peut être employée les hottes encastrable sur mesure de 30"
Note: Standard Liners are pre-cut for installation of Inca Smart. For installations with
the Inca HC SS, remove the additional perforated section.
Note: Les Cadres Standard sont précoupés pour l'installation de l'Inca Smart. Pour des
installations avec L'Inca HC SS, enlevez la section perforée additionnelle.
RANGEHOOD DIMENSIONS / DIMENSIONS DE LA HOTTE
LINER DIMENSIONS / DIMENSIONS DU CADRE
Pre-Planning Your Installation -
Important: The recommended height to install this hood off the cooktop is
a minimum of 24" and a maximum of 30” for maximum effectiveness. Also consult the cooktop manufacturer’s
recommendation.
Planiez votre installation - Important : La hauteur recommandée pour installer cette hotte au-dessus de la
surface de cuisson est d’un minimum de 24” et d’un maximum de 30” pour un maximum d’efcacité. De plus,
nous vous recommandons consulter le manuel de recommandations du fabricant de la surface de cuisson.
NOTE: Remove the metal packaging support
piece from the top of the hood before
installation (SEE RIGHT)
NOTE : Enlevez le morceau de empaquetage de
soutien en métal du dessus du hotte avant
installation (VOYEZ BIEN)










