Spec Internal (PDF)

duct
work
Rev.07/11
Recirculating Installations
IT IS HIGHLY RECOMMENDED THAT PROFESSIONAL STYLE COOKING
ALWAYS BE VENTED TO THE OUTSIDE. For installations where ductwork to
the outside of your home is impossible or highly impractical Charcoal Filters,
which attach to the blower assembly, absorb smoke and odors.
cabinet
or
custom
hood
ceiling
hood
ceiling
vent grate
vent grate
Some ductwork
must be installed to
exhaust the range-
hood back into
the kitchen either
at the top or face
of the cabinet or
wood hood. This
duct work must not
terminate into a
dead air space or
inside the cabinet
or custom hood.
duct
work
cabinet
or
custom
hood
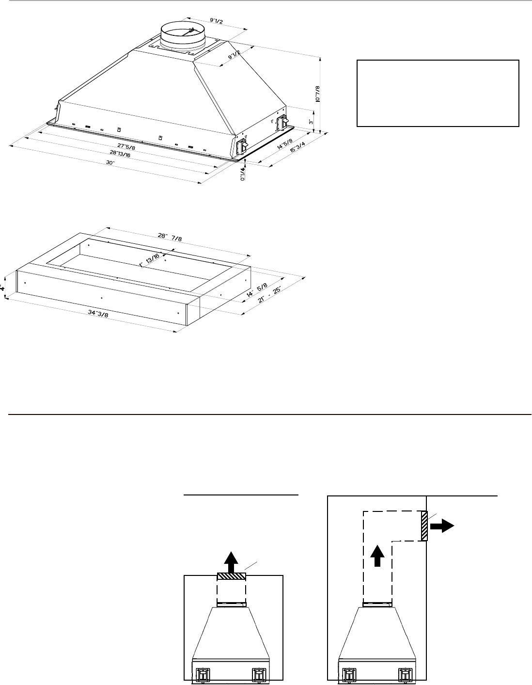
Dimensional Diagrams
Liners
ProLiner 36 Stainless (LINE36PR)
designed for 36” wide installations
Create a perfectly-sealed, non-combustible perimeter around the Inca Pro 30.
Designed for 36” wide installations. Depth adjustable from 21” - 25”
28 7/8”
14 5/8”
Cut-Out
Pre-Planning Your Installation -
Important: Consult the installation instructions before you begin
installing this rangehood. The recommended height to install this hood off the cooktop is a minimum of
30” for maximum effectiveness. Also consult the cooktop manufacturer’s recommendation.
WARNING
!
Product specifications are subject to change without notification. Consult the installation instructions
before you begin installing this rangehood.
Make your ductrun as straight and
short as possible. The ductrun should
not exceed 35 equivalent feet if
ducted with the required minimum of
6” round duct. Count 45º angles as 3
feet, 90º elbows as 5 feet, and 90º flat
elbows as 12 feet.
For best results, use no more than
three 90° elbows. Make sure that
there is a minimum of 24” of straight
duct between elbows if more than
one is used. Do not install two
elbows together. If you must elbow
right away, do it as far away from
the hood’s exhaust opening as pos-
sible.
Pre-Planning Your Ductwork - Important: Consult the installation instructions before you begin installing this rangehood.


