Instruction manual
Manuals
Brands
Eureka Manuals
Household Appliances
AS3100 series
28
29
30
31
32
33
34
35
36
37
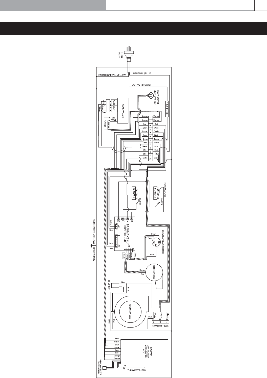
Wiring Diagr
am
Derwent High Efficiency Gas Log Fire
31
1
...
...
29
30
31
32
33
...
...
37