Instruction manual

1. Mark the exact location for the wall penetration
a. Determine that you will not be cutting through any vertical wall studs.
b. Check that the location of the wall mounted terminal conforms to the requirements of AG601 – Location 
of a Flue Terminal.
2. Cut 2 holes through the wall 55mm and 65mm diameter, with centres located 70mm apart.
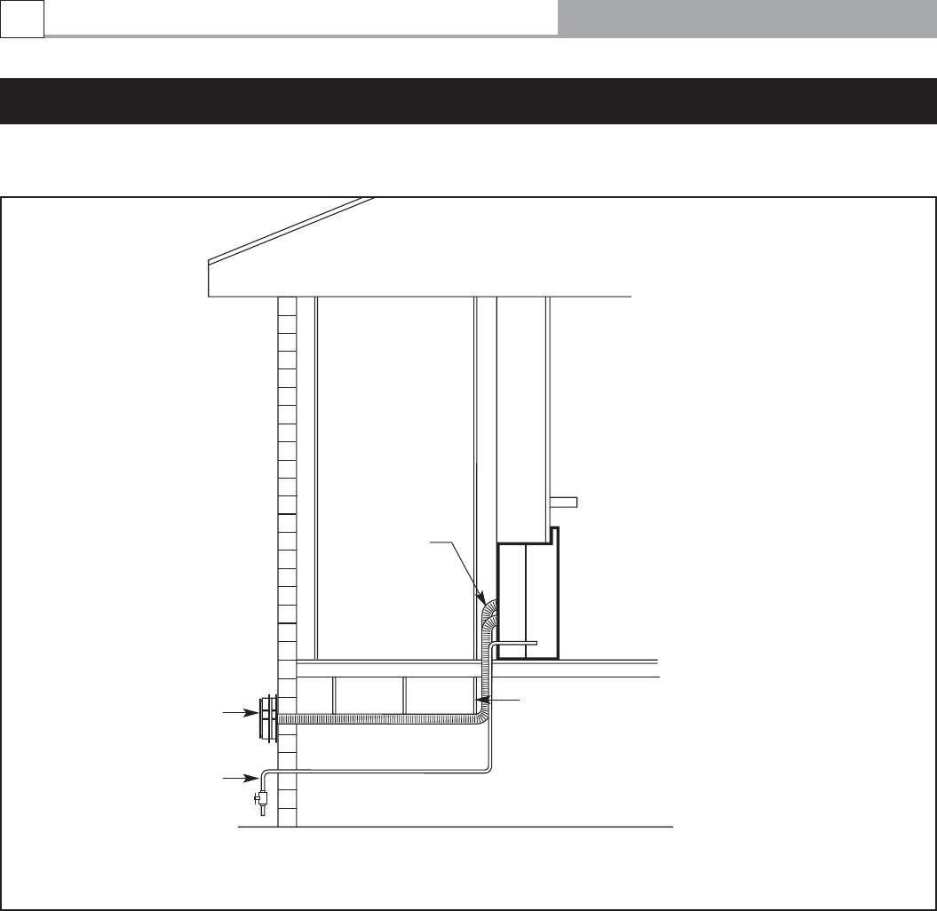
3. Fit the 60mm Diam and 50mm dia. flexible tube to terminals on the rear of the heater using provided hose clamps.
50mm dia. flexible tube and exhaust terminal on rear of heater are colour-coded red. (NOTE- it may be necessary to
trim the flexible tubes depending on wall thickness.) Note: Expand both ends of both flexitubes to allow clamps
to firmly secure tubes to outlets.
4. Extend flexible tubes to allow room for fitment of tubes and hose clamps to flue gas cowl. Attach 50mm dia.
exhaust flexible tube to exhaust port at flue gas cowl (both colour-coded red) and clamp using smaller diameter
hose clamp. (Refer detail above.) Attach 60mm dia flexible tube to remaining terminals on heater and flue cowl
then clamp using remaining larger diameter hose clamp. 
5. Ensure a minimum flue slope of 25mm per metre. Use hanger every 500mm to avoid water trap.
6. Fix flue gas cowl to wall using suitable screws or fixtures. Seal to wall using high temperature waterproof sealant.
Installation on stump floor and internal wall. (Flue kit under floor.)
Installation (Continued)
HORIZONTAL FLUE INSTALLATION
1/2˝ copper pipe
Flexi tubes
(Supplied by
Jindara)
Eureka AGA
Approved gas cowl
(Supplied by Jindara)
Min. flue slope
25mm per metre.
Use hangers every
500mm to avoid
water trap.
MAX OVERALL FLUE PIPE LENGTH 4.6M
Derwent High Efficiency Gas Log Fire
10










