Datasheet
Manuals
Brands
ESKA Manuals
Switchboard Technology
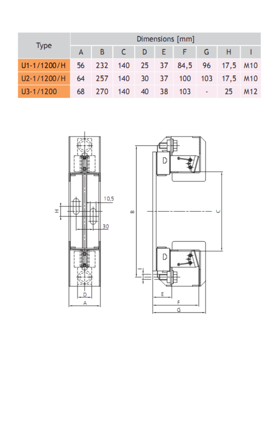
NH fuse holder with blown fuse indicator 1-pin 400 A
1
2
- Sicherungshalter ist ohne Sicherung ! -
1
2