User guide

5GB
2. Insert one of the wood screws into the
upper middle hole. This screw will be
the mounting point for the control unit.
Make sure the screw is projecting out
from wall about 3 mm. (Illust. 3.2) Illust . 4
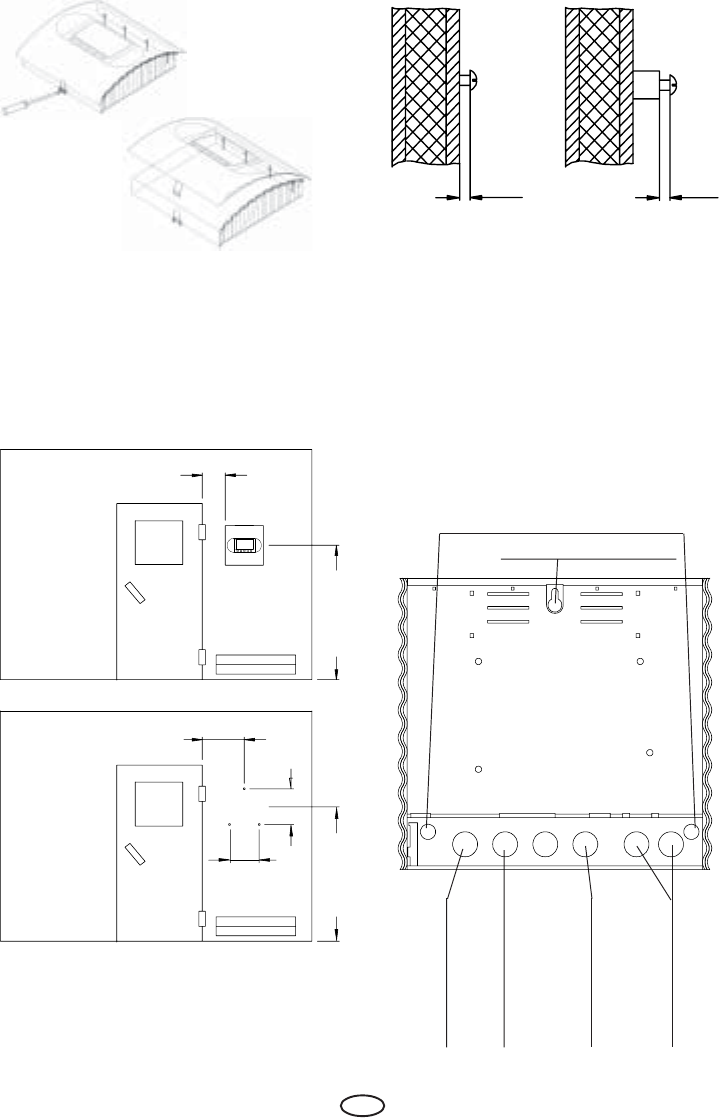
feed-through
channel for power
supply lead wire
feed-through
channel for oven
supply line
feed-through
channel for sensor
lines
feed-through channel
for lamp and fan
upper mounting hole
mounting holes
Illust. 3.1
Illust. 2
ca. 20 cm
eye level
ca. 34 cm
19 cm
eye level
17,4 cm
3
3
Illust . 3.3Illust . 3.2
3. Hang the control unit onto the 3 mm
projecting screw. Insert the included
rubber sleeves into the openings on the
back side of the housing and lead the
electrical cable through these openings.
Screw the lower part of the housing onto
the cabin wall using the lower threaded
holes. (Illust. 4)
1. Remove the cover of the control unit. To
do this press the fastening tab inwards
with a flat screwdriver and remove the
housing top by pivoting it upwards
(Illust.1). Drill the threaded holes for the
included 4 x 20 mm wood screws
according to Illust. 2 & 3.1.
Illust. 1










