Indoor Fireplace User Manual

5
Specifications
INSTALLATION OPTIONS:
• Parallel to a wall or placed in a corner • With a oor hearth or raised up the wall
• Vertical or horizontal venting
WARNING:
Operation of this heater when not connected to a properly installed and maintained venting system can
result in carbon monoxide (CO) poisoning and possible death.
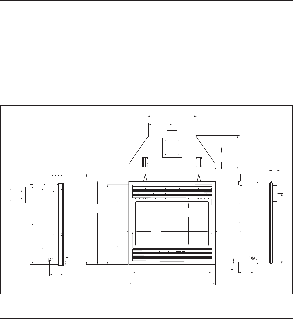
DIMENSIONS:
Figure 1. Dimensions of the Firebox.
RATING LABEL LOCATION:
The rating label is located under the control panel and is attached to a rectangular metal sheet that is
chained to the replace.










