Indoor Fireplace User Manual

17
1
In accordance with the current CSA B149, Natural Gas and Propane Installation Code.
2
In accordance with the current ANSI Z223.1 NFPA 54, National Fuel Gas Code.
* These numbers are only estimates. Clearance in accordance with installation codes and the requirements of the gas supplier.
t
A vent shall not terminate directly above a side walk or paved driveway that is located between two single family dwellings and it serves both dwellings.
+
Permitted only if verandah, porch, deck, or balcony is fully open on a minimum of two sides beneath the oor.
NOTE: Venting terminals shall not be recessed into walls or siding.
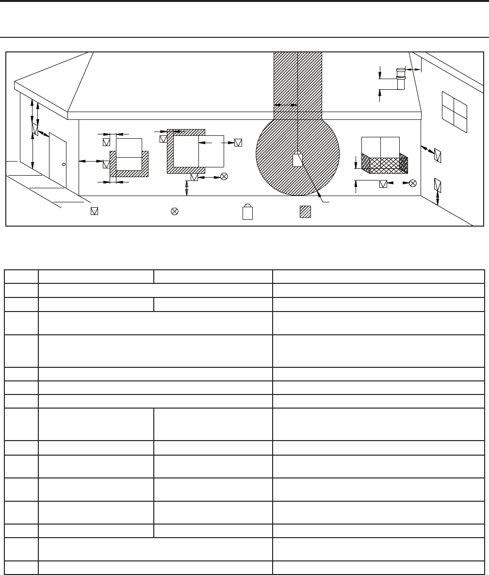
Figure 24. Vent Termination Restrictions, refer to Table 4.
Initial Installation
QUALIFIED INSTALLERS ONLY
VENT TERMINATION RESTRICTIONS:
A
A
D
E
L
B
C
F
B
B
B
J
M
K
G
H
I
Openable
Fixed
Closed
Openable
Fixed
Closed
Termination Cap
Air Supply Inlet
Gas Meter
G
G
Restriction Zone
(Termination not allowed)
N
O
Letter Canadian Installation
1
US Installation
2
Description
A 12 in (30 cm) Clearance above grade, verandah, porch, deck, or balcony.
B 12 in (30 cm) 9 in (23 cm) Clearance from window or door that may be opened.
C 12 in (30 cm)* Clearance from permanently closed window (to prevent
condensation).
D 24 in (60 cm)* Vertical clearance to ventilated soft located above the
terminal, within a horizontal distance of 2 ft (60 cm) from
center line of terminal.
E 18 in (45 cm)* Clearance to unventilated soft.
F 12 in (30 cm)* Clearance to outside corner.
G 12 in (30 cm)* Clearance to inside corner.
H 3 ft (91 cm) within a height of
15 ft (4.5 m) above the meter/
regulator assembly
3 ft (91 cm) within a height of
15 ft (4.5 m) above the meter/
regulator assembly*
Clearance to each side of center line extended above
meter/regulator assembly.
I 3 ft (91 cm) 3 ft (91 cm)* Radial clearance around service regulator vent outlet.
J 12 in (30 cm) 9 in (23 cm) Clearance to non-mechanical air supply inlet to building, or
the combustion air inlet to any other appliance.
K 6 ft (1.83 m) 3 ft (91 cm) above if within 10
ft (3 m) horizontally
Clearance to mechanical air supply inlet.
L 7 ft (2.13 m
)t
7 ft (2.13 m)
*t
Clearance above paved sidewalk or paved driveway located
on public property.
M 12 in / 30 cm
+
12 in / 30 cm*
+
Clearance under verandah, porch, deck, or balcony.
N 12 in (30 cm)* Clearance horizontally to any surface (such as an exterior
wall) for vertical terminations.
O 12 in (30 cm) Clearance above roof line for vertical terminations.
Table 4: Vent termination clearances, refer to Figure 24.










