Owner`s manual

WARNING: Operation of this heater when not connected to a properly installed and maintained
venting system can result in carbon monoxide (CO) poisoning and possible death.
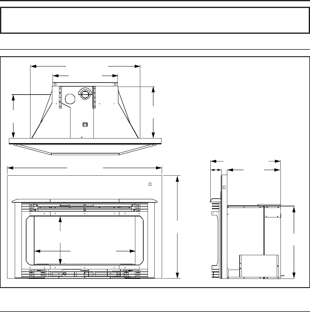
Specifications
5
12
1
/16"
(30.6cm)
18" (45.7cm)
30
5
/16" (77cm)
14
3
/16"
(36.0cm)
13 "
(33.7cm)
42" (106.7
31
13
/16" (80.8cm)
27
7
/8"
(70.8 cm)
3"
(7.6cm)
14
3
/8"
(36.5cm)
18
15
/16" (48.1cm)
19 "
(49.5cm)
RATING LABEL LOCATION:
The rating label is located under the control panel and is attached to a rectangular metal sheet that is
chained to the replace.
DIMENSIONS:
Figure 1: Focus Exterior Dimensions.










