- Sherwood Industries Ltd. Direct Vent Fireplace Owner's Manual

21
Initial Installation
QUALIFIED INSTALLERS ONLY
VENTING:
This replace has been tested and certied for use with SIMPSON DURAVENT DIRECT VENT TYPE “GS”
PIPE FOR GAS STOVES, SECURITY CHIMNEY’S SECURE VENT DIRECT VENT SYSTEM kits, AMERICAN
METAL PRODUCTS AMERIVENT DIRECT and DIRECT-TEMP SELKIRK METALBESTOS.
A 1” (25 mm) clearance to combustibles must be maintained around any vertical vent pipe. Around a
horizontal vent pipe, the clearance to combustibles should be 2” (51 mm) above and 1” (38 mm) on the
sides and bottom. When combustible materials are directly above a 90° elbow, 3” (76 mm) of clearance
are necessary (see Figure 28).
Table 7. Vent Pipe Minimum Clearances.
Vertical Pipe to
the Side Walls
Horizontal Pipe to
the Sides & Bottom
Above an Elbow
Above the Unit
Above an Elbow
Not Above the Unit
Above Horizontal
Vent Pipe
Wall Frame 8”
(203mm) or less
Hard
Pipe
1”
(25.4 mm)
1”
(38.1 mm)
3”
(76.2 mm)
3”
(76.2 mm)
2”
(51 mm)
10”x10”
(25x25cm)
Flex
Pipe
1”
(25.4 mm)
1”
(38.1 mm)
8”
(203 mm)
4 ”
(111 mm)
4 ”
(111 mm)
10”x10”
(25x25cm)
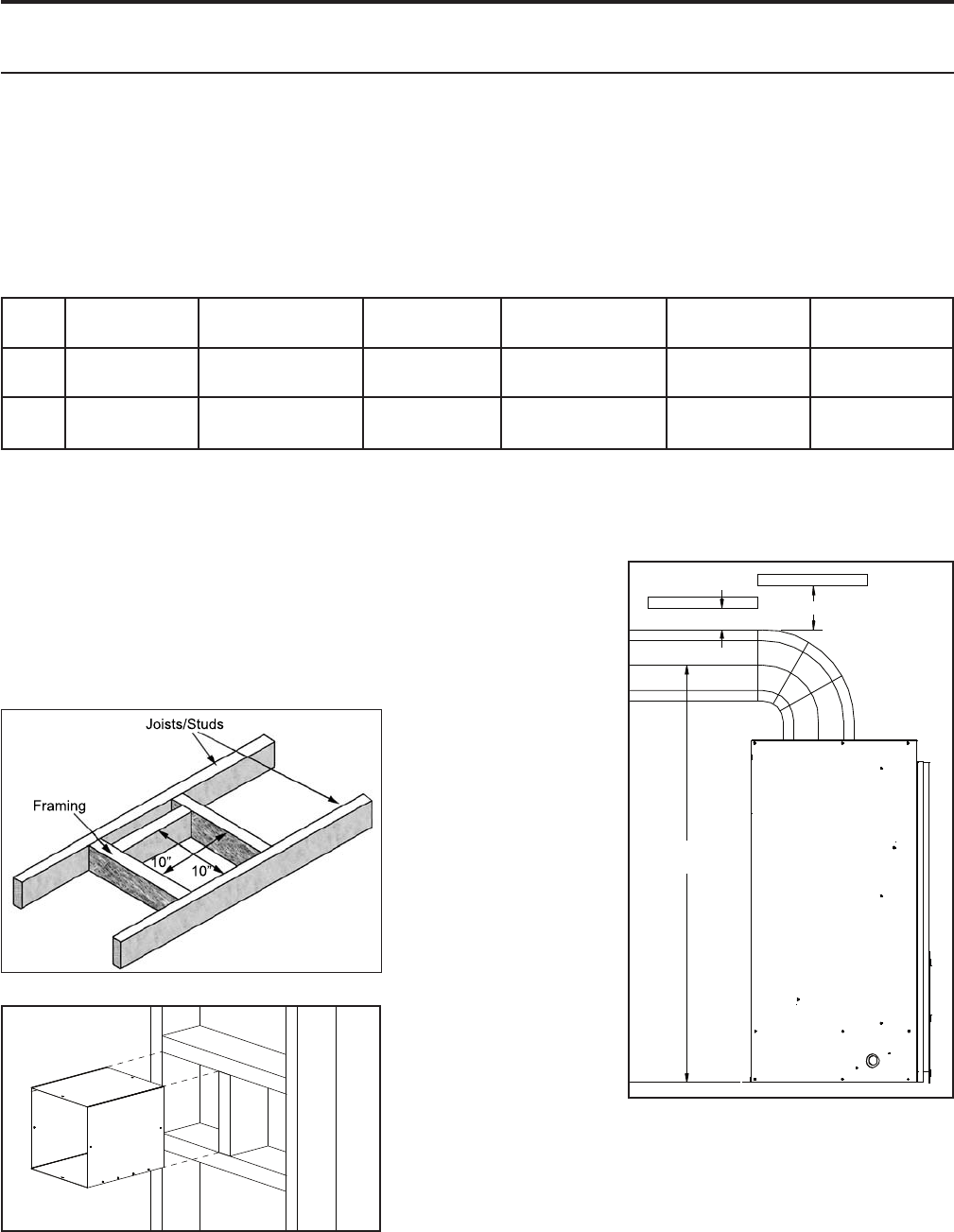
A 10” (254 mm) x 10” (254 mm) frame (see Figure 29) will assure the proper support and spacing for
the vent pipe as it passes through the wall. Installations in Canada require that a wall thimble be used
for passing through walls and ceilings. All sealing and vapour barriers must comply with local building
codes.
When planning an installation, it is necessary to select the proper
length of vent pipe for the particular requirements. The conguration
of the venting pipes depends on the locations of walls, ceilings,
and studs. However, the pipes cannot be of arbitrary length and
arrangement. Because the length of the vertical and horizontal
Figure 28. Vent Pipe Clearances.
2" (51mm)
3" (76mm)
41
3
/4"
(1048mm)
Figure 29. Vent Framing For Wall or Ceiling.
Figure 30. Wall/Ceiling Thimble provided.
Framing
Joists/Studs
10”
10”
WARNING: This gas appliance must not be connected
to a chimney ue serving a separate solid-burning
appliances.
sections dramatically
affects the burning
efciency of the
replace, certain
guidelines have
been set in INITIAL
INSTALLATION - VENT
CONFIGURATIONS AND
RESTRICTOR SETTINGS.
A two (2) piece wall/
ceiling thimble is
included with the stove
(see Figure 30).
Venting terminals can
not be recessed into a
wall or siding.










