
USER MANUAL
PTM 215B – 2.4 GHZ Pusbutton Transmitter Module
© 2016 EnOcean | www.enocean.com F-710-017, V1.0 PTM 215B User Manual | v0.8 | September 2016 | Page 35/42
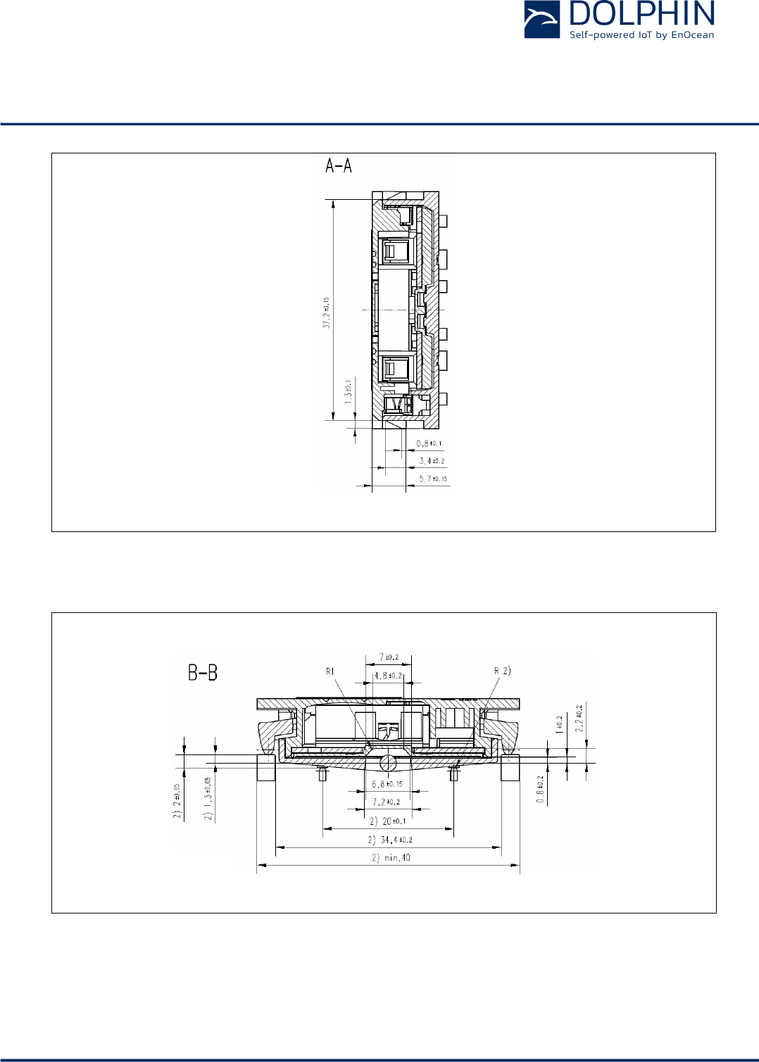
Figure 23 – PTM 215B, cut A
2) dimensions of rocker part
Figure 24 – PTM 215B, cut B and C