User's Manual

USER MANUAL V0.9
EnOcean GmbH
Kolpingring 18a
82041 Oberhaching
Germany
Phone +49.89.67 34 689-0
Fax +49.89.67 34 689-50
info@enocean.com
www.enocean.com
Subject to modifications
PTM 210 / 210C step EA User Manual V0.9
October 18, 2011 4:33 PM
Page 9/17
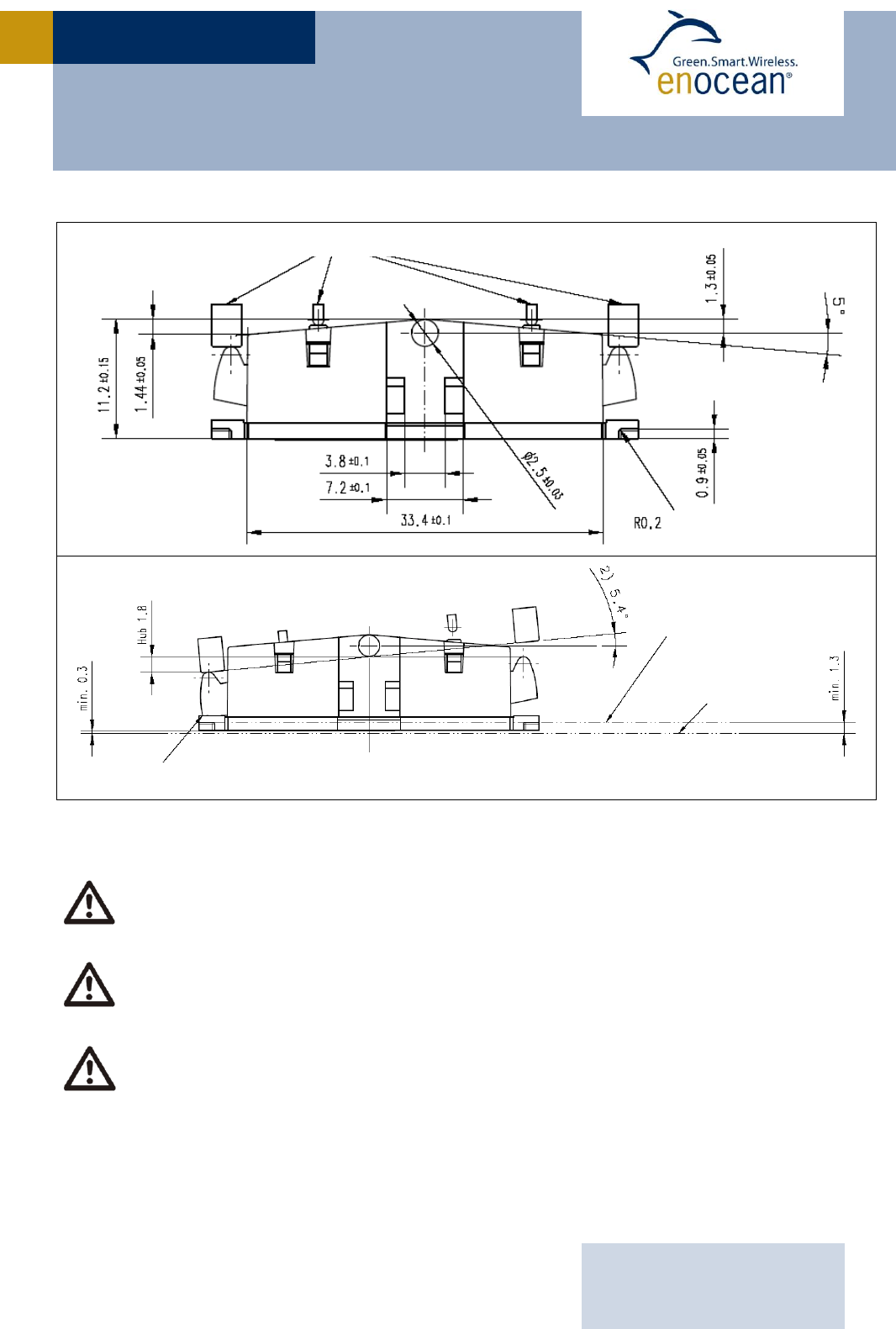
PTM 210 / 210C STEP EA
2) dimensions of rocker part
PTM 210 without antenna, side view
If the rocker is not mounted on the rotation axis of PTM 210 several tolerances
have to be considered!
The measure from support plane to top of the energy bow is 7.70 mm +/- 0.3
mm!
The movement of the energy bow must not be limited by mounted rockers!
Catwalks of switch rocker must not exert continuous forces on contact nipples!
catwalks of switch rocker
rocker tilted to 5.4 degrees (corresponds to 1.8 mm energy bow travel)
press bow to stopper
support plane
mounting plane
rotary