Product Manual

VENTING
Sufficient ventilation (airflow) over the rear mounted condenser of the refrigerator is
necessary for the refrigerator to operate correctly
.
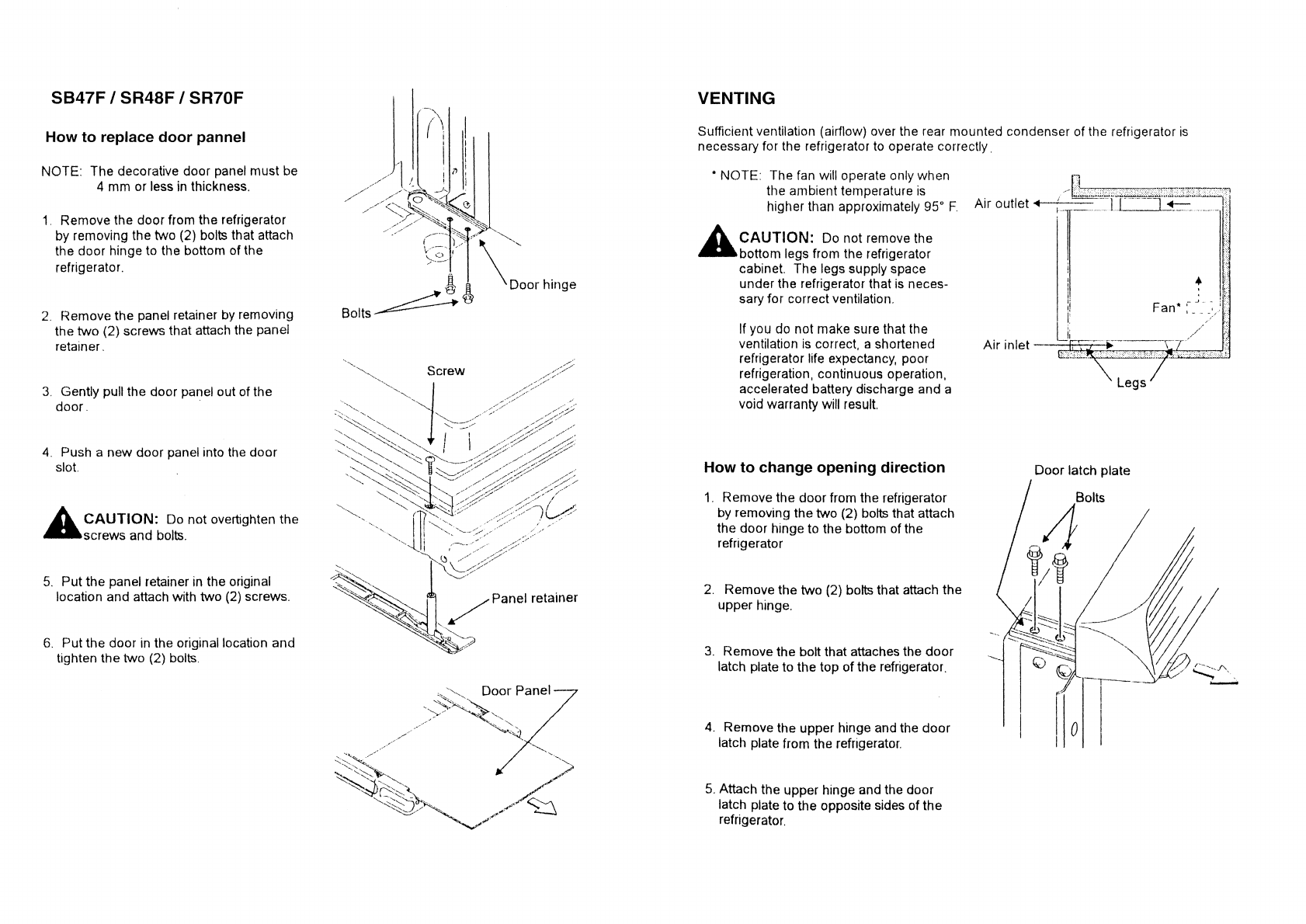
SB47F / SR48F / SR70F
How to replace door panne)
NOTE: The decorative door panel must be
4 mm or less in thickness.
1.
Remove the door from the refrigerator
by removing the two (2) bolts that attach
the door hinge to the bottom of the
refrigerator.
Remove the panel retainer by removing
2.
Y 9
the two (2) screws that attach the panel
retainer.
3.
Gently pull the door panel out of the
door.
4.
Push a new door panel into the door
slot.
A
CAUTION: Do not overtighten the
screws and bolts.
5.
Put the panel retainer in the original
location and attach with two (2) screws.
6.
Put the door in the original location and
tighten the two (2) bolts.
* NOTE: The fan will operate only when
the ambient temperature is
higher than approximately 95° F.
A
CAUTION: Do not remove the
bottom legs from the refrigerator
cabinet. The legs supply space
under the refrigerator that is neces-
sary for correct ventilation.
If you do not make sure that the
ventilation is correct, a shortened
refrigerator life expectancy, poor
refrigeration, continuous operation,
accelerated battery discharge and a
void warranty will result,
How to change opening direction
1.
Remove the door from the refrigerator
by removing the two (2) bolts that attach
the door hinge to the bottom of the
refrigerator
2.
Remove the two (2) bolts that attach the
upper hinge.
3.
Remove the bolt that attaches the door
latch plate to the top of the refrigerator.
4.
Remove the upper hinge and the door
latch plate
from
the refrigerator.
Door latch plate
Panel retainer
Screw
5. Attach the upper hinge and the
door
latch plate to the opposite sides of the
refrigerator.
Air outlet 4
Fan*
Air inlet
{"'-"
Legs
4