Product Manual

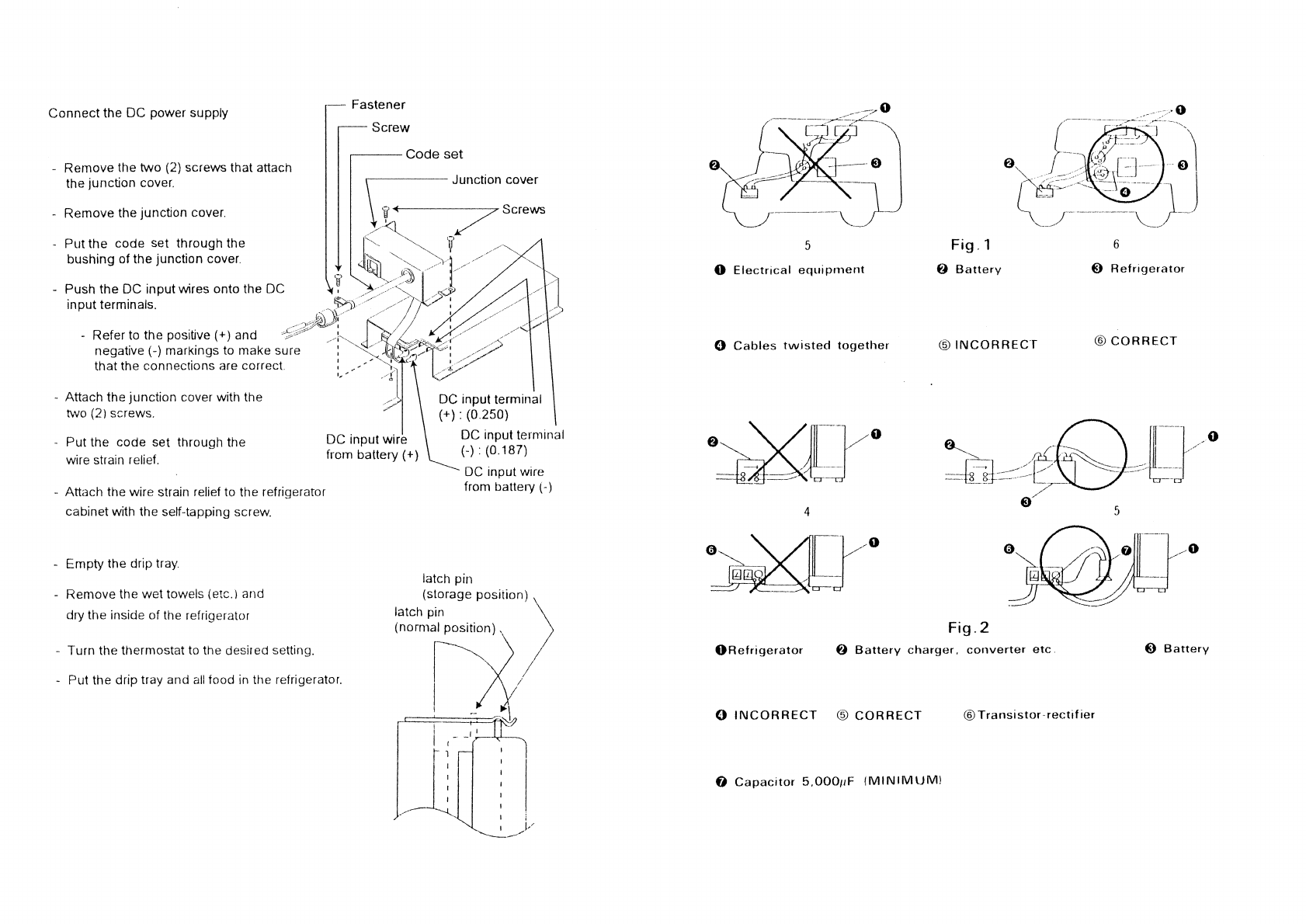
Connect the DC power supply
Remove the two (2) screws that attach
the junction cover.
Remove the junction cover.
Put the code set through the
bushing of the junction cover.
-
Push the DC input wires onto the DC
input terminals.
- Refer to the positive (+) and
negative (-) markings to make sure
that the connections are correct.
- Attach the junction cover with the
two (2) screws.
Put the code set through the
wire strain relief.
-
Attach the wire strain relief to the refrigerator
cabinet with the self-tapping screw.
<,'--
-'
DC input terminal
(+) : (0.250)
DC input terminal
(-) : (0.187)
DC input wire
from battery (-)
-
Empty the drip tray.
Fig. 1
O Battery
6
0 Refrigerator
latch pin
(storage position)
latch pin
(normal position) ,
- Put the drip tray and all food in the refrigerator.
5
❑
Electrical equipment
❑
Cables twisted together
4
L
-
1
---
L
-
T
© INCORRECT
® CORRECT
-
ET
---
L
-
3
Fig .2
°Refrigerator
O Battery charger, converter etc.
0 Battery
-
Remove the wet towels (etc.) and
dry the inside of the refrigerator
-
Turn the thermostat to the desired setting.
❑
INCORRECT ® CORRECT
t-1;
❑
Capacitor 5,000pF (MINIMUM)
©Transistor-rectifier