user manual

2 P—P28 and P128 Series Lube Oil Controls with Built-in Time Delay Relay Product/Technical Bulletin
I
ntroduction
!
WARNING: Personal injury hazard. All
P28 and P128 controls are
designed as lubrication
protection controls. Failure of
the P28 or P128 could allow
the refrigeration compressor
to be damaged in a way that
may not be apparent upon
visual inspection. Follow
proper procedures and the
compressor manufacturer’s
instructions, as well as any
warning signs on or around
the equipment, when
discharging and
disassembling the
compressor.
Environmental damage
hazard. If leakage of sensed
media (such as refrigerant or
oil) can be harmful to the
environment, or hazardous in
any way, user must provide
for proper containment.
The P28 and P128 controls measure the net oil
pressure available to circulate oil throughout a
pressure-lubricated refrigeration system. The net oil
pressure is the difference between the oil pressure at
the pump discharge and the refrigerant pressure in
the compressor crankcase.
Example: If the oil pressure pump discharge reading
is 90 psi (621 kPa) and the crankcase
pressure is 70 psi (483 kPa), the net oil
pressure is 20 psi (138 kPa).
The P28 and P128 have a built-in time delay relay.
This relay allows the oil pressure to build up for the
time delay period before the compressor trips. This
also prevents nuisance lockouts due to intermittent
loss of oil pressure. The time delay relay is a
“trip free” device. The manual reset cannot be
overridden by pressing and holding the reset button.
Manual reset models are available with time delays
of 30, 45, 60, 90, or 120 seconds. Automatic reset
models are available with a 90-second time delay.
The time delay relay is compensated to minimize the
effect of ambient temperature variations. However,
the time delay relay will be affected by voltage
variations.
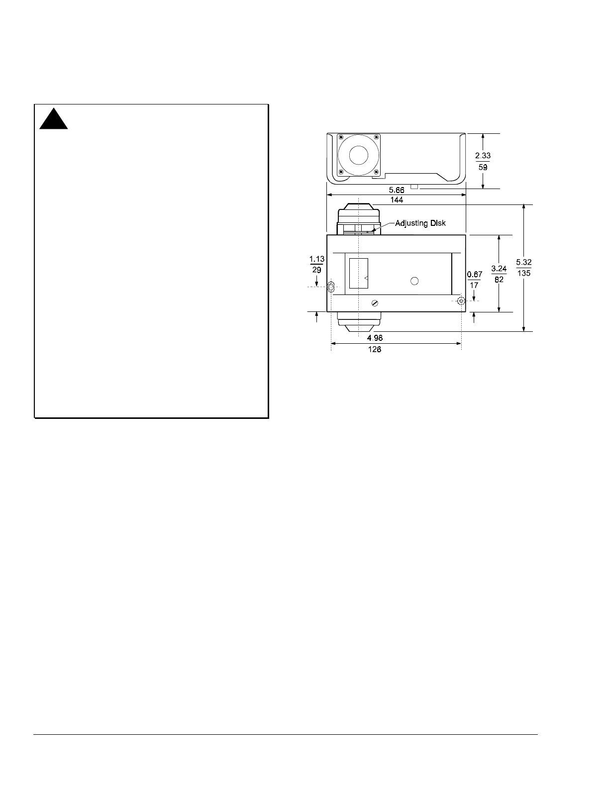
Dimensions
Figure 2: P28 or P128 Dimensions (in./mm)
O
peration
When the compressor starts, the timer is energized
because the net oil pressure of the system is zero.
During normal operation, the net oil pressure should
build up to the pressure switch’s cut-out setting
(scale setting) plus the switch differential (3 to 5 psi
[21 to 34 kPa]) within the required time delay,
causing the time delay relay to de-energize.
If the net oil pressure does not rise to the cut-out
pressure setting plus the switch differential within the
required time delay, the time delay relay trips and
stops the compressor.
If the net oil pressure drops below the cut-out
pressure setting during the compressor’s run cycle,
the time delay relay energizes. If the net oil pressure
returns within the time delay, the time delay relay de-
energizes and the compressor continues to operate
normally. If the net oil pressure does not return
within the time delay, the control shuts down and
locks out the compressor.










