Satellite Radio User Manual
Table Of Contents
- Rosemount 848T High Density Temperature Transmitter with Foundation™ fieldbus

Reference Manual
00809-0100-4697, Rev EA
October 2011
Rosemount 848T
3-16
Transducer Block Channel Definitions
The 848T supports multiple sensor inputs. Each input has a channel assigned
to it allowing an AI or MAI Function Blocks to be linked to that input. The
channels for the 848T are as follows:
Table 3-8. Channel Definitions
for the 848T
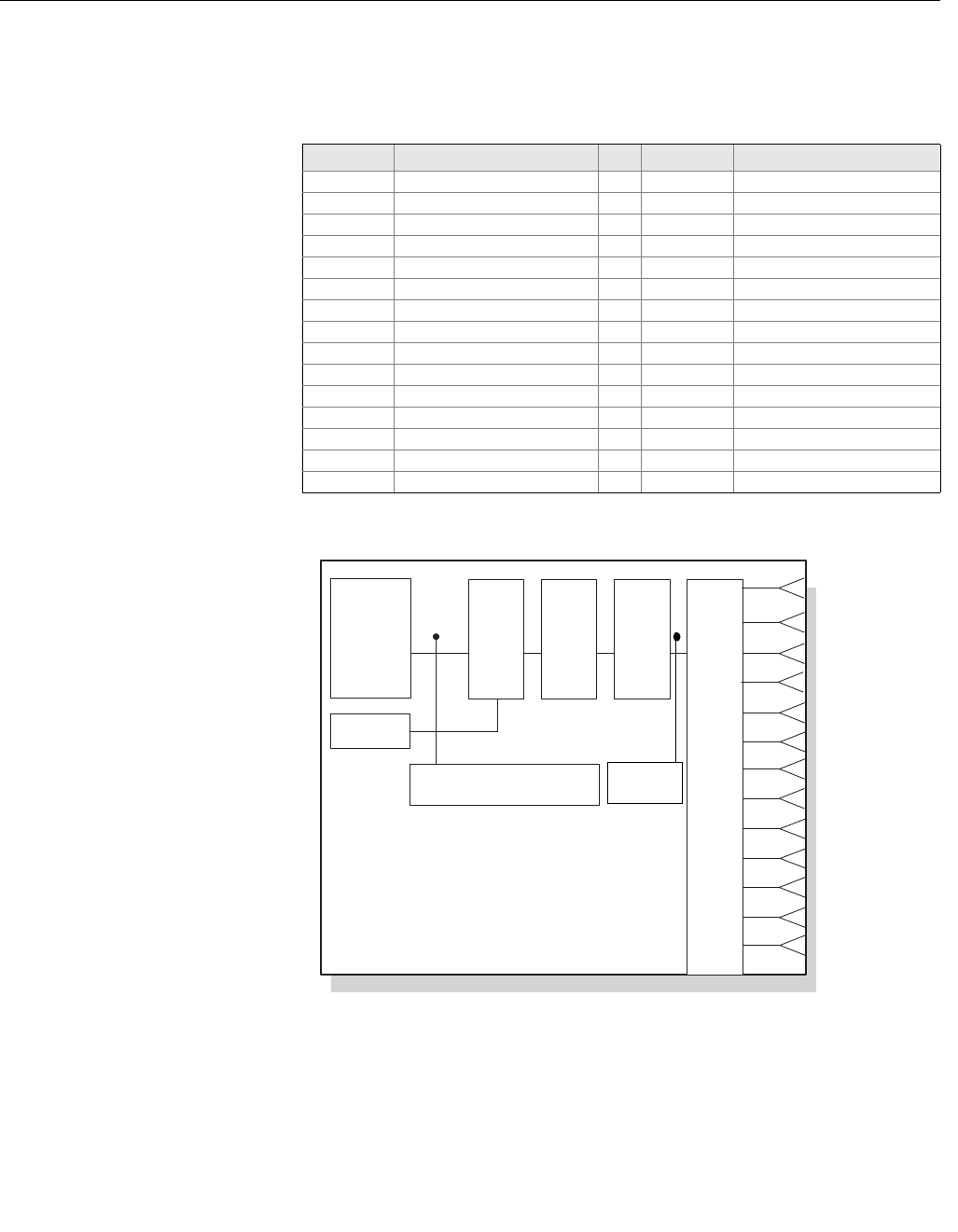
Figure 3-1. Transducer Block
Data Flow
Transducer Block Errors
The following conditions are reported in the BLOCK_ERR and XD_ERROR
parameters.
Channel Description Channel Description
1 Sensor One 16 Sensor 3 Deviation
2 Sensor Two 17 Sensor 4 Deviation
3 Sensor Three 18 Sensor 5 Deviation
4 Sensor Four 19 Sensor 6 Deviation
5 Sensor Five 20 Sensor 7 Deviation
6 Sensor Six 21 Sensor 8 Deviation
7 Sensor Seven 22 Sensor 1 Rate Change
8 Sensor Eight 23 Sensor 2 Rate Change
9 Differential Sensor 1 24 Sensor 3 Rate Change
10 Differential Sensor 2 25 Sensor 4 Rate Change
11 Differential Sensor 3 26 Sensor 5 Rate Change
12 Differential Sensor 4 27 Sensor 6 Rate Change
13 Body Temperature 28 Sensor 7 Rate Change
14 Sensor 1 Deviation 29 Sensor 8 Rate Change
15 Sensor 2 Deviation
A/D
Signal
Conversion
CJC
Diagnostics
Linearization
Temperature
Compensation
Damping
Units/Ranging
1
2
3
4
5
6
7
8
9
10
11
12
S1
S2
S4
S3
S5
S6
S7
S8
DS1
DS2
13
DS3
DS4
BT
Channel
Channel
Channel
Channel
Channel
Channel
Channel
Channel
Channel
Channel
Channel
Channel
Channel
Measurement
Validation










