Satellite Radio User Manual
Table Of Contents
- Rosemount 848T High Density Temperature Transmitter with Foundation™ fieldbus

Reference Manual
00809-0100-4697, Rev EA
October 2011
Rosemount 848T
2-6
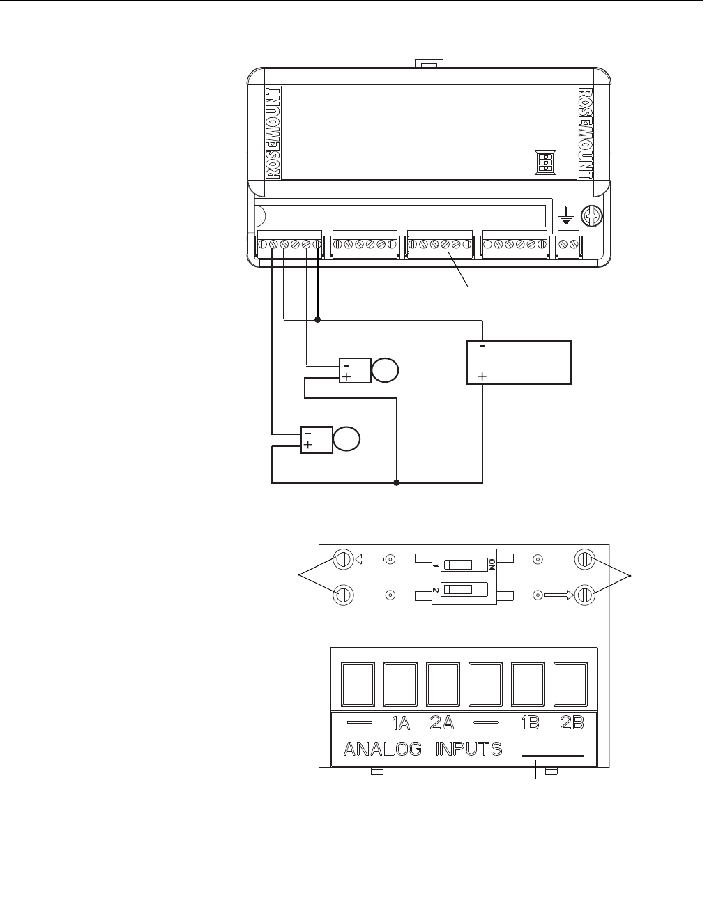
Figure 2-5. 848T Analog Input
Wiring Diagram
Figure 2-6. 848T Analog
Connector
Power Supply
Analog Input
Connectors
Analog Transmitters
HART
Channel A
250 ohm resistor in the loop when switched to the left
Space available for
identification of inputs
HART
Channel B










