Entuitive Touchmonitor User Guide
Manuals
Brands
Elo TouchSystems Manuals
Monitor
1767L Series
11
12
13
14
15
16
17
18
19
20
To
p
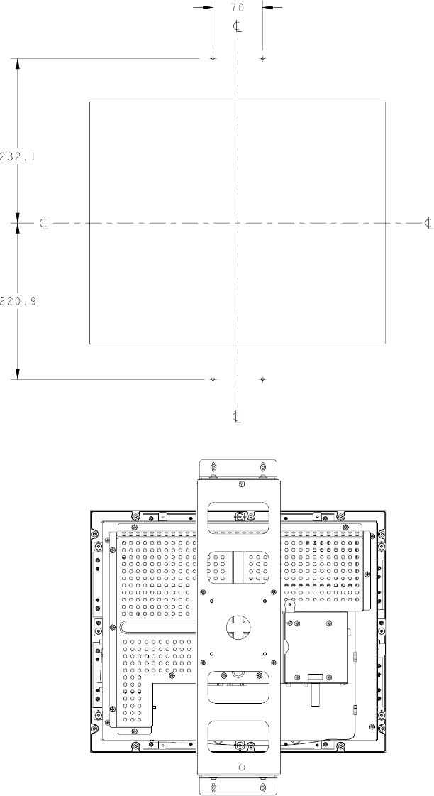
1767L Option 2
2-10
Elo Entuitiv
e Touchmonitor
U
ser Guide
1
...
...
15
16
17
18
19
...
...
54