Owner manual

* MODEL 100 MagnaValve ** MODEL 100 MagnaValve *
56790 Magnetic Drive Mishawaka, In. USA 46545 (574) 256-500156790 Magnetic Drive Mishawaka, In. USA 46545 (574) 256-5001
100DATA.CDR 02/22/2003100DATA.CDR
02/22/2003
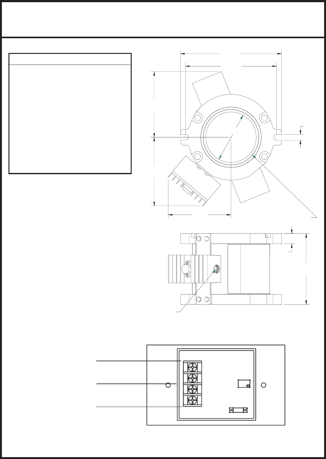
Input : +60Vdc @ .95A
Output:0-2400 lbs/min
Indicator: Red LED = Flow
Temp. Range : 0-75)C or 32-167°F
with remote mounted valve driver
0-100°C or 32 - 212°F
Weight: 32 lbs
SPECIFICATIONS
VALVE
1/2" CONDUIT HUB1/2" CONDUIT HUB
BOTH SIDESBOTH SIDES
TOP & BOTTOMTOP & BOTTOM
'O' RING SEAL 5.5 I.D'O' RING SEAL 5.5 I.D
5.0
7.0
6.3
7.0
1.0
6.5
10.0
9.00
0.56
1. Red
2. Black
3. Orange
4. Brown
VD7 Valve Driver
To Controller
To Valve
CABLE: 2 Conductor Shielded
18 AWG or Equivalent
Connect shield at control only
NOTE : Unit requires a power pak
Model MC
Model 102
Model Vd4a
or model FC control for closed
loop amps control with 100:5
current transformer
Locate valve driver remote for high
temperature applications


