Installation Instructions

2
ELECTRIC WALL OVEN INSTALLATION INSTRUCTIONS
(and Optional Electric or Gas Cooktop Combination)
Figure 2
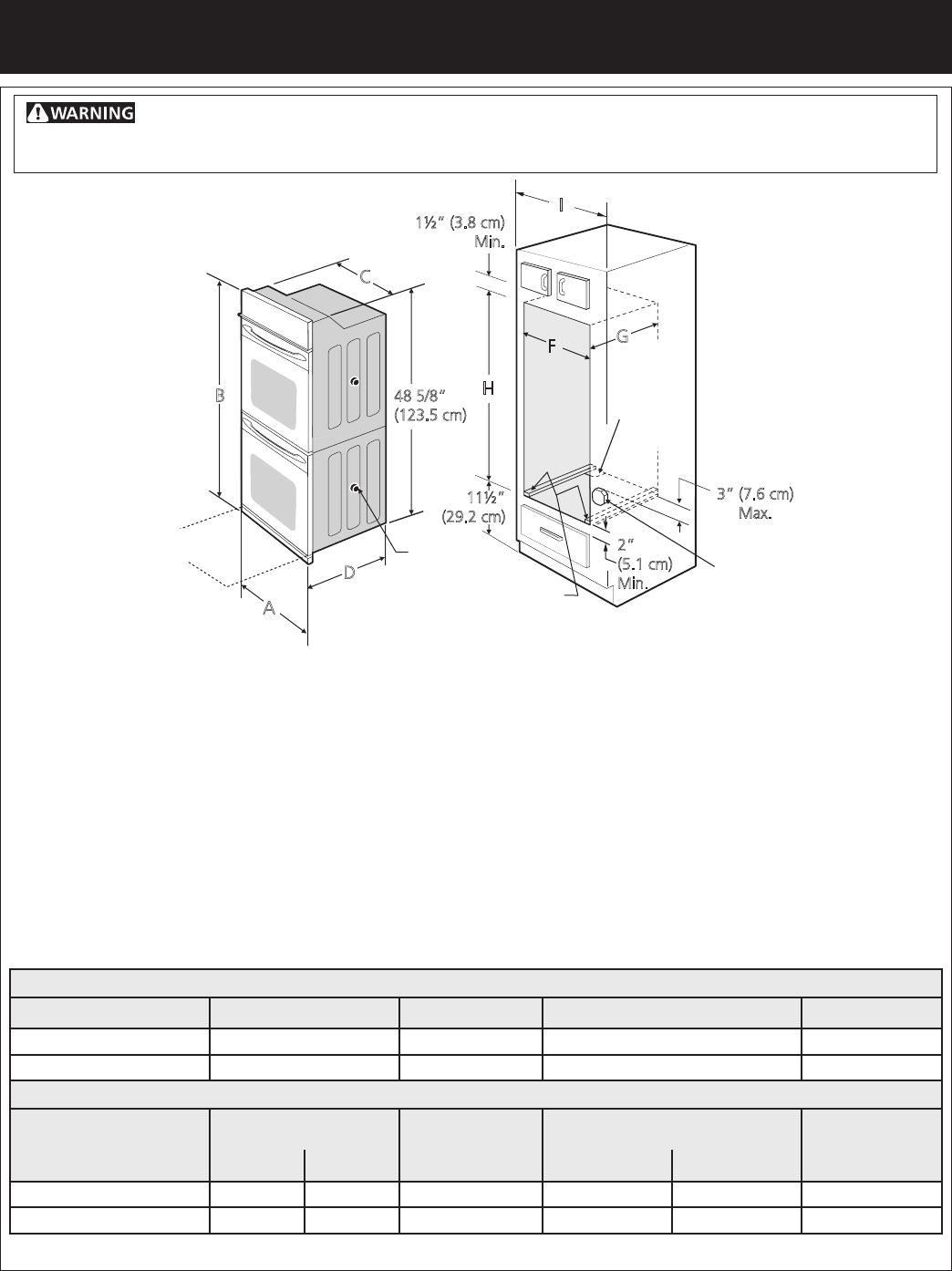
27" AND 30" DOUBLE OVENS (Single Ovens see Figure 1)
Do not remove spacers (if equipped) on the side walls of the built-in oven. These spacers
center the oven in the space provided. The oven must be centered to prevent excess heat buildup that may
result in heat damage or re.
NOTES:
1. Base must be capable of supporting 300 pounds
(136 kg) for 27" models and 375 pounds (170 kg)
for 30" models.
2. Allow at least 21" (53.3 cm) clearance in front of
oven for door depth when it is open.
3. Dimension G (cutout depth) is critical to the
proper installation of the built-in oven. If the oven
decorative trim does not butt against the cabinet,
or if noise is heard on convection models, verify
dimension G to assure it is according to the
required dimension.
4. For a cutout height greater than 49
3
/
8
"
(125.4 cm)
add a 2" (5 cm) wide wood shim of appropriate
height to each side of the opening under the
appliance side rails.
5. For a cutout height (H) greater than 50
1
/
8
"
(127.3 cm) you can order a larger bottom trim
through a Service Center.
All dimensions are in inches (cm).
B
A
D
F
I
H
G
C
48 5/8”
(123.5 cm)
11½”
(29.2 cm)
2”
(5.1 cm)
Min.
3” (7.6 cm)
Max.
1½” (3.8 cm)
Min.
Door Open
(see note 2)
Hole for
Cable
Electrical
Junction Box
2" (5 cm) Wide Wood
Spacer if Needed
Spacer
PRODUCT DIMENSIONS
MODEL A B C D
27" (68.6 cm) Wall Oven 27 (68.6) 50
7
/
16
(128.1) 24
5
/
8
(62.5) 24
3
/
4
(62.9)
30" (76.2 cm) Wall Oven 30 (76.2) 50
7
/
16
(128.1) 28
1
/
4
(71.8) 24
3
/
4
(62.9)
CUTOUT DIMENSIONS AND CABINET WIDTH
F G (Min.)
H. Standard Height
(**Others, see notes 4 & 5)
I
MODEL Min. Max. Min.
Max.
27" (68.6 cm) Wall Oven 24
7
/
8
(63.2) 25
1
/
4
(64.1) 23
1
/
2
(59.7) 48
11
/
16
(123.7) 49
3
/
8
(125.4) 27
1
/
8
(68.9) Min
30" (76.2 cm) Wall Oven 28
1
/
2
(72.4) 29 (73.7) 23
1
/
2
(59.7) 48
11
/
16
(123.7) 49
3
/
8
(125.4) 30
1
/
8
(76.5) Min