Installation Instructions

18
INSTRUCTIONS D'INSTALLATION POUR FOUR ENCASTRÉ ÉLECTRIQUE
(Combiné à une table de cuisson électrique ou à gaz (en option))
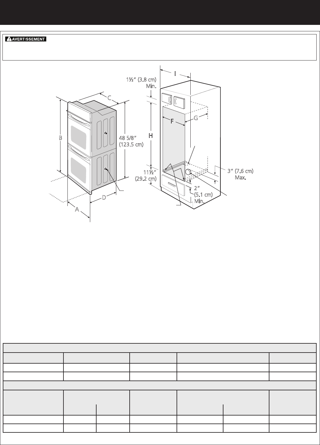
Figure 2
Fours encastrés doubles 27" et 30" (Pour les fours encastrés simples voir la gure 1)
N’enlevez pas les entretoises sur les parois latérales du four. Ces entretoises centrent le four
dans l’espace fourni. Le four doit être centré pour prévenir une accumulation excessive de chaleur pouvant
causer un feu ou des dommages.
Toutes les dimensions sont en pouces (cm).
NOTES:
1. La base doit pouvoir supporter 300 lbs (136 kg)
pour les modèles 27" et 375 lbs pour les modèles
30".
2. Allouez au moins 21" (53.3 cm) d'espace à l'avant
du four pour permettre l'ouverture complète de la
porte du four.
3. La dimension G (profondeur du découpage) est
critique pour une bonne installation du four. Si la
moulure inférieure du four ne vient pas s'accoter
contre l'armoire, ou si un bruit se fait entendre sur
les modèles à convection, vériez la dimension G
pour vous assurer qu'elle est correcte.
4. Si la hauteur de découpage est plus grande que
49
3
/
8
"
(125.4 cm), ajoutez une entretoise de bois de
2" (5 cm) de largeur et de hauteur appropriée de
chaque côté de l'ouverture sous l'appareil.
5. Si la hauteur de découpage (H) est plus grande
que 50
1
/
8
" (127.3 cm), vous pouvez commander
une moulure inférieure plus large en contactant un
Centre de service.
B
A
D
F
I
H
G
C
48 5/8”
(123.5 cm)
11½”
(29.2 cm)
2”
(5.1 cm)
Min.
3” (7.6 cm)
Max.
1½” (3.8 cm)
Min.
Entretoise
Entretoise de bois de 2" (5
cm) de largeur si nécessaire
Boîte de jonction
Ouverture
pour la
sortie du
câble
Porte ouverte
(voir note 2)
DIMENSIONS DE L'APPAREIL
MODÈLE A B C D
27" (68.6 cm) 27 (68.6) 50
7
/
16
(128.1) 24
5
/
8
(62.5) 24
3
/
4
(62.2)
30" (76.2 cm) 30 (76.2) 50
7
/
16
(128.1) 28
1
/
4
(71.8) 24
3
/
4
(62.2)
DIMENSIONS DE DÉCOUPAGE ET DE L'ARMOIRE
F G (Min.)
H. Hauteur standard
(**autres, voir notes 4 & 5)
I
MODÈLE Min. Max. Min.
Max.
27" (68.6 cm) 24
7
/
8
(63.2) 25
1
/
4
(64.1) 23
1
/
2
(59.7) 48
11
/
16
(123.7) 49
3
/
8
(125.4) 27
1
/
8
(68.9) Min
30" (76.2 cm) 28
1
/
2
(72.4) 29 (73.7) 23
1
/
2
(59.7) 48
11
/
16
(123.7) 49
3
/
8
(125.4) 30
1
/
8
(76.5) Min