Installation Instructions

10
INSTRUCCIONES DE INSTALACIÓN PARA EL HORNO ELÉCTRICO DE PARED
(Combinado con una cocina eléctrica o de gas facultativa)
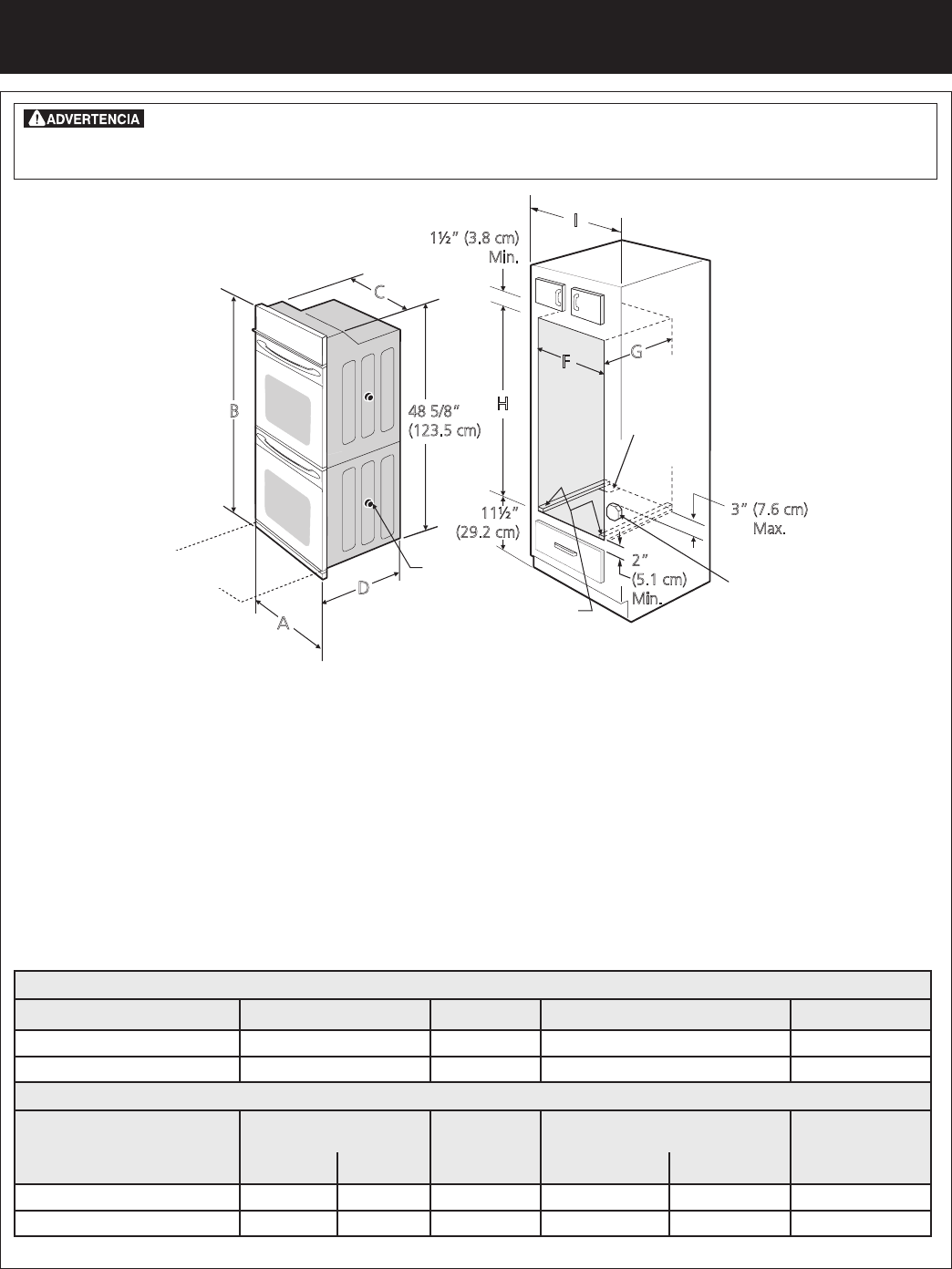
Figura 2
HORNOS DOBLES DE 27" Y 30" (Para hornos simples, ver la Figura 1)
Todas las dimensiones se dan en pulgadas (cm).
NOTES:
1. La base debe poder sostener 300 libras (136 kg)
para los modelos 27" y la base debe poder
sostener 375 libras (170 kg) para los modelos 30".
2. Deje por lo menos 21" (53.3 cm) de espacio libre
para la profundidad de la puerta cuando esta
abierta.
3. La dimensión G (profundidad del corte) está
primordial para instalar correctamente el horno de
pared. Si el adorno del armazón del horno no topa
contra el armario, o si escuche un ruido, verique
si la dimensión G está en conformidad con la
dimensión requerida.
4. Para un corte de una profundidad mayor que 49
3
/
8
"
(125.4 cm) agregar una cuña de madera de 2"
(5 cm) de ancho para lograr la altura apropiada a
cada lado del oricio ubicado debajo de los rieles
laterales del accesorio.
5. Para un corte de una altura (H) mayor que 50
1
/
8
"
(127.3 cm) una moldura grande inferior puede ser
pedido con su representante.
No quite los separadores de los muros laterales del horno empotrado. Estos espaciadores
centran el horno en el espacio provisto. El horno debe estar centrado para prevenir una concentración excesiva
de calor que podría resultar en daños por el calor o un incendio.
B
A
D
F
I
H
G
C
48 5/8”
(123.5 cm)
11½”
(29.2 cm)
2”
(5.1 cm)
Min.
3” (7.6 cm)
Max.
1½” (3.8 cm)
Min.
Puerta Abierta
(vea la nota 2)
Espaciador
Caja eléctrica de
empalme
Oricio
para el
Cable
Espaciador de Madera
de 2" (5 cm) de ancho, si
es necesario
DIMENSIONES DEL APARATO
MODELO A B C D
Horno de pared 27" (68.6cm)
27 (68.6) 50
7
/
16
(128.1) 24
5
/
8
(62.5) 24
3
/
4
(62.2)
Horno de pared 30" (76.2cm)
30 (76.2) 50
7
/
16
(128.1) 28
1
/
4
(71.8) 24
3
/
4
(62.2)
DIMENSIONES DEL HUECO Y ANCHURA DEL ARMARIO
F G (Mín.)
H. Altura estándar
(**Otras, vea notas 4 & 5)
I
MODELO Mín. Máx. Mín.
Máx.
Horno de pared 27" (68.6cm)
24
7
/
8
(63.2) 25
1
/
4
(64.1) 23
1
/
2
(59.7) 48
11
/
16
(123.7) 49
3
/
8
(125.4) 27
1
/
8
(68.9) Mín
Horno de pared 30" (76.2cm)
28
1
/
2
(72.4) 29 (73.7) 23
1
/
2
(59.7) 48
11
/
16
(123.7) 49
3
/
8
(125.4) 30
1
/
8
(76.5) Mín