Manual

EFCO CORPORATION 6/2012 PART NO. Y554
Series 5500 Silicone Structural Glazed Curtain Wall Installation Instructions
Section XI: Perimeter Caulking
STEP #1 PREPARE JOINT FOR CAULK APPLICATION
A. Perimeter caulk joint application should not begin until the curtain wall elevation has
been completely erected and glazed.
B. Clean and prime the perimeter caulk joint opening as recommended by the sealant
manufacturer’s installation instructions.
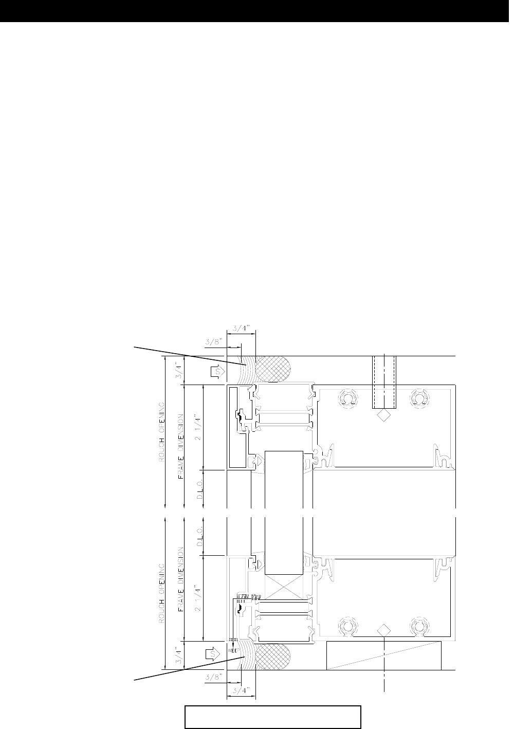
C. Use the appropriate sized backer rod for the desired caulk joint. The minimum caulk joint
size for the S-5500 is 3/4”. Recess the backer rod as shown in the installation instruc-
tions and shop drawing details.
D. Apply the sealant and tool into the joint, recessing the sealant as noted.
IMPORTANT NOTE: DO NOT BLOCK THE SYSTEM WEEP HOLES LOCATED 2” FROM EACH END
OF THE SILL PRESSURE COVERS WITH SEALANT.
EFCO recommends taping over the weep holes at the sills to avoid sealing these openings
closed. Remove the tape after the perimeter seal is tooled.
Prepare and apply the interior caulk joint per the sealant manufacturer’s instructions and
the approved shop drawings, if required.
Do not block weep
holes with sealant.
Recess backer
rod and sealant
as shown.
HEAD & SILL (JAMB SIMILAR)










