TWR125SS Wine Cooler Owner's Manual
Table Of Contents

• An empty cooler can be dangerous for children. If disposing of the
cooler remove gaskets, latches, lids and the entire door from your
unused appliance, or take other action to ensure that children cannot
become trapped inside.
• If your model of wine cooler is equipped with a lock, take care to keep
the keys away from children.
• Do not cut or remove the third prong (the grounding prong) from the
power cord.
• The cord should be secured behind the unit and should not be left
exposed or dangling.
• Do not move this cooler without emptying it of its contents and securing
the door in a closed position.
1. Specifications
Model
TWR125SS
Voltage/frequency 115V/60Hz
Power 75 W
Rated Current 1.0 A
Net Weight 7.8 KG
Protection Type I
SN • N
Climate Type
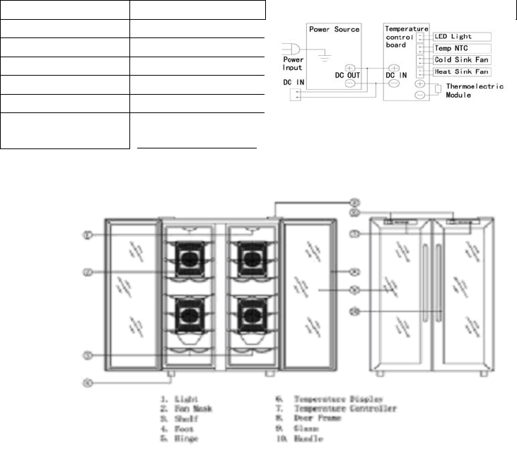
2. Parts and Features
Note: The above diagram is for reference only- your specific model of wine
cooler will likely differ slightly from the diagram above (in light placement,
bottle capacity, etc,) but its operation will be essentially the same.
3. Operation
The Temperature Control
Your wine cooler uses a manual control to adjust the thermostat-
Adjust the temperature using the dial located in the upper right hand corner
inside the wine cooler.
Interior Light
3