Instruction Manual

input 120VAC
WH (N)
BK (L)
input 0-10V
PUR
GRY
RED (24VDC+)
BLUE (RETURN-)
YELLOW (DIM RETURN-)
input 120VAC
WH (N)
BK (L)
input 0-10V
PUR
GRY
RED (24VDC+)
BLUE (RETURN-)
YELLOW (DIM RETURN-)
input 120VAC
WH (N)
BK (L)
input 0-10V
PUR
GRY
RED (24VDC+)
BLUE (RETURN-)
YELLOW (DIM RETURN-)
input 120VAC
WH (N)
BK (L)
input 0-10V
PUR
GRY
RED (24VDC+)
BLUE (RETURN-)
YELLOW (DIM RETURN-)
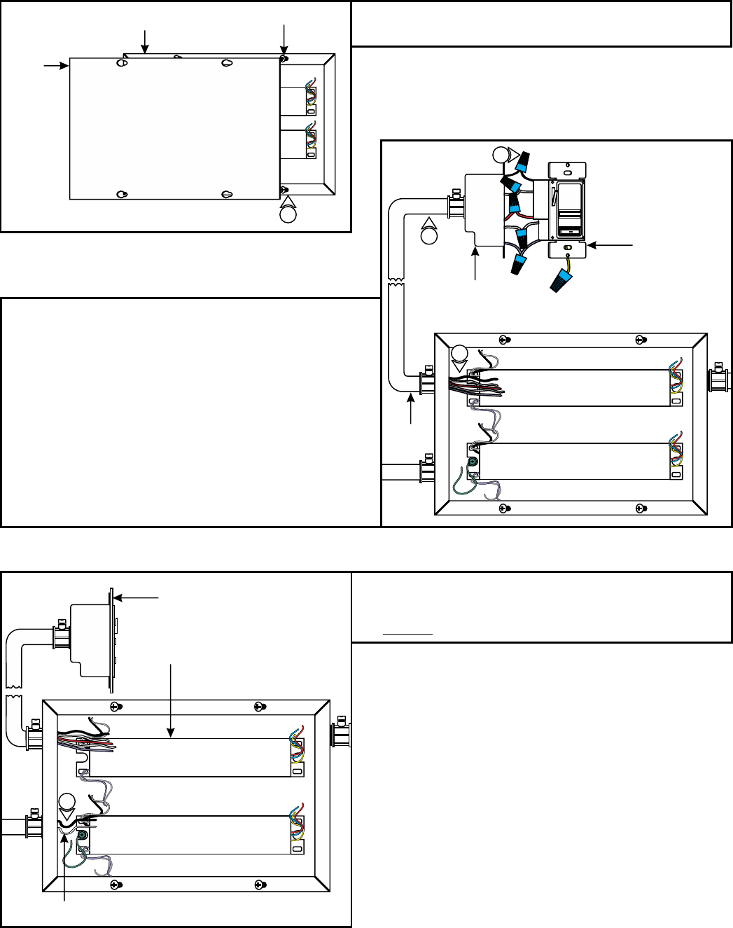
Install the Power Supply
B
2: Install conduits from the controller electrical box to main
panel and soft strip to the power supply case.
3: Run proper wire size and color from the controller (switch)
electrical box to the power supply case.
4: Connect the black, white, red, purple, and gray controller
wires respectively to black, white, red, purple, and gray wires
with a wire nut. The yellow controller wire is not used in this
procedure. Cap the yellow controller wire with a wire nut. For
three way switching, refer to the instructions provided with
the controller.
5: Secure controller to the electrical box.
ELECTRICAL BOX
CONDUIT
2
C
6: Run the 120 volt power line wires from the panel to the
power supply case.
7: DO NOT connect the power wires to the panel at this time.
120 VOLT POWER
LINE WIRES
LIGHTOLIER:
ZP600FAM120
CONTROLLER
2
LIGHTOLIER:
ZP600FAM120
CONTROLLER
4
POWER SUPPLY
1: Loosen the four Phillips screws on the front of the power
supply cover to slide the cover off of the case.
A
COVER
1
CASE
PHILLIPS SCREW
input 120VAC
WH (N)
BK (L)
input 0-10V
PUR
GRY
RED (24VDC+)
BLUE (RETURN-)
YELLOW (DIM RETURN-)
input 120VAC
WH (N)
BK (L)
input 0-10V
PUR
GRY
RED (24VDC+)
BLUE (RETURN-)
YELLOW (DIM RETURN-)
6
3