Owner's manual

COM T T2
T3
T4T1
4
3
C
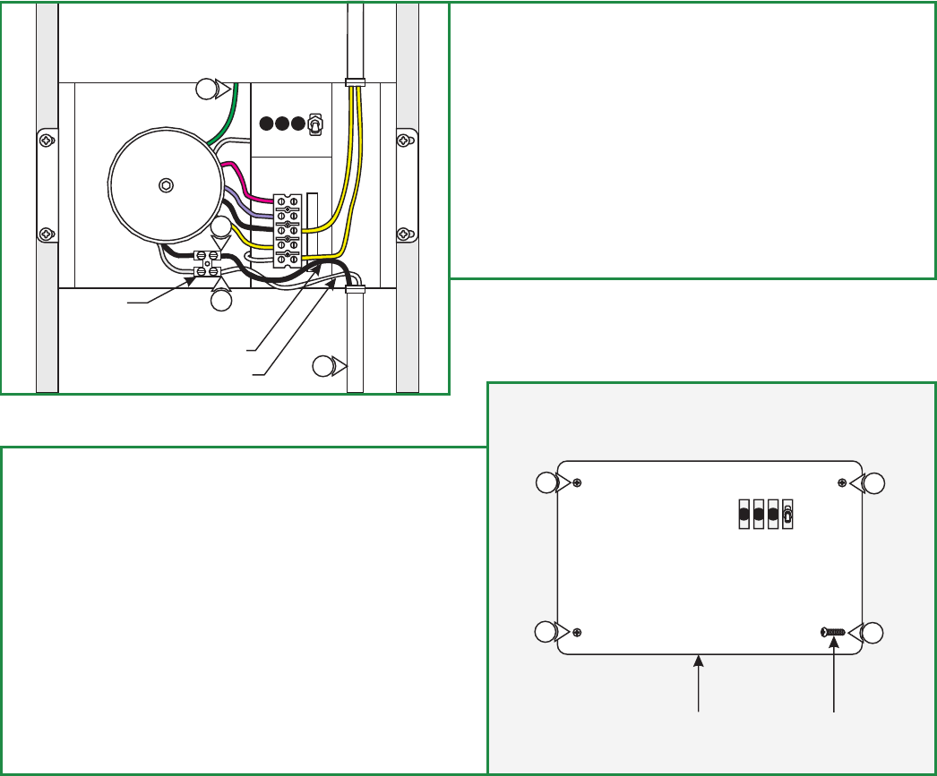
Connect the 230 Volt Wires
1: Install the 230 Volt power wires to the transformer.
2: Insert the hot power wire inline with the black transformer
wire into the 230 Volt terminal block and tighten the screw
firmly.
3: Insert the neutral power line wire inline with the white
transformer wire into the 230 Volt terminal block and tighten
the screw firmly.
4: Ground the transformer housing in accordance with local
electrical codes.
3
2
1
230 VOLT
TERMINAL BLOCK
HOT POWER WIRE
NEUTRAL POWER WIRE
D
5: After installing the entire low voltage system, if the lamps
have low intensity, then measure the voltage at the fixture
closest to the power feed contacts with a voltmeter. The
system must be at least 80% loaded and the voltmeter
should read between 22V-24V ~AC. If the voltage does not
fall in this range, call Edge Lighting "Technical Support" at
773-770-1195.
6: Operating the system for a few minutes, on the low
voltage side, all electrical connection points should be no
more than warm to the touch. If a connection is hot to the
touch, retighten the connection and check to ensure that
the temperature decreases.
7: Replace the transformer cover and tighten the four Phillips
screws on the front of the transformer.
COVER
7
PHILLIPS SCREW
7
7
7