User Manual

COMT T1 T2 T3 T4
COMP P1 P2 P3 P4
2
Install the Remote Transformer
A
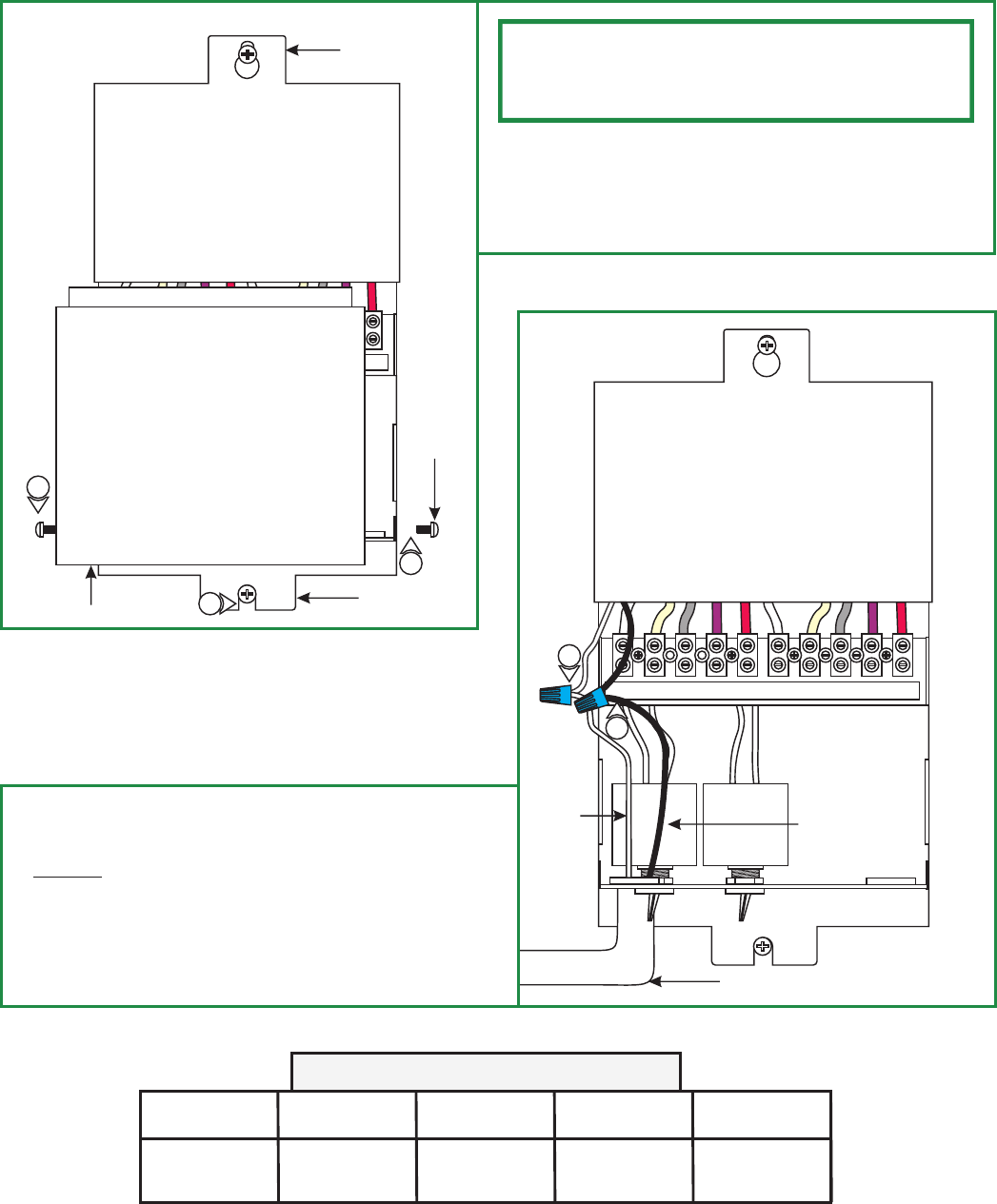
1: Use the transformer brackets to secure the transformer in
place (hardware not included).
2: Loosen and remove the two Phillips screws on the sides of
the transformer to remove the transformer cover.
NOTE: In order to use small gauge wires from the transformer
to the electrical box, it is recommended to install the remote
transformers as near as possible to the electrical box. See "Low
Voltage Wire Size Chart" below.
TRANSFORMER COVER
TRANSFORMER
BRACKET
PHILLIPS
SCREW
2
COMT T1 T2 T3 T4
COMP P1 P2 P3 P4
TRANSFORMER
BRACKET
1
2
B
3: Install a conduit and power wires from the panel to the
transformer.
4: DO NOT connect the power wires to the panel at this time.
5: Connect the 120V black transformer wire to the hot power
with a wire nut.
6: Connect the 120V white transformer wire to the neutral
power with a wire nut.
6
CONDUIT
HOT POWER
WIRE
NEUTRAL
POWER
WIRE
5
LOW VOLTAGE WIRE SIZE CHART
TRANSFORMER
WATTAGE
WIRE SIZE
FOR 5 FT
WIRE SIZE
FOR 6-15 FT
WIRE SIZE
FOR 16-20 FT
WIRE SIZE
FOR 21-40 FT
300 WATT #10 GA #6 GA #4 GA #1 GA