Datasheet
Manuals
Brands
ebmpapst Manuals
Blowers
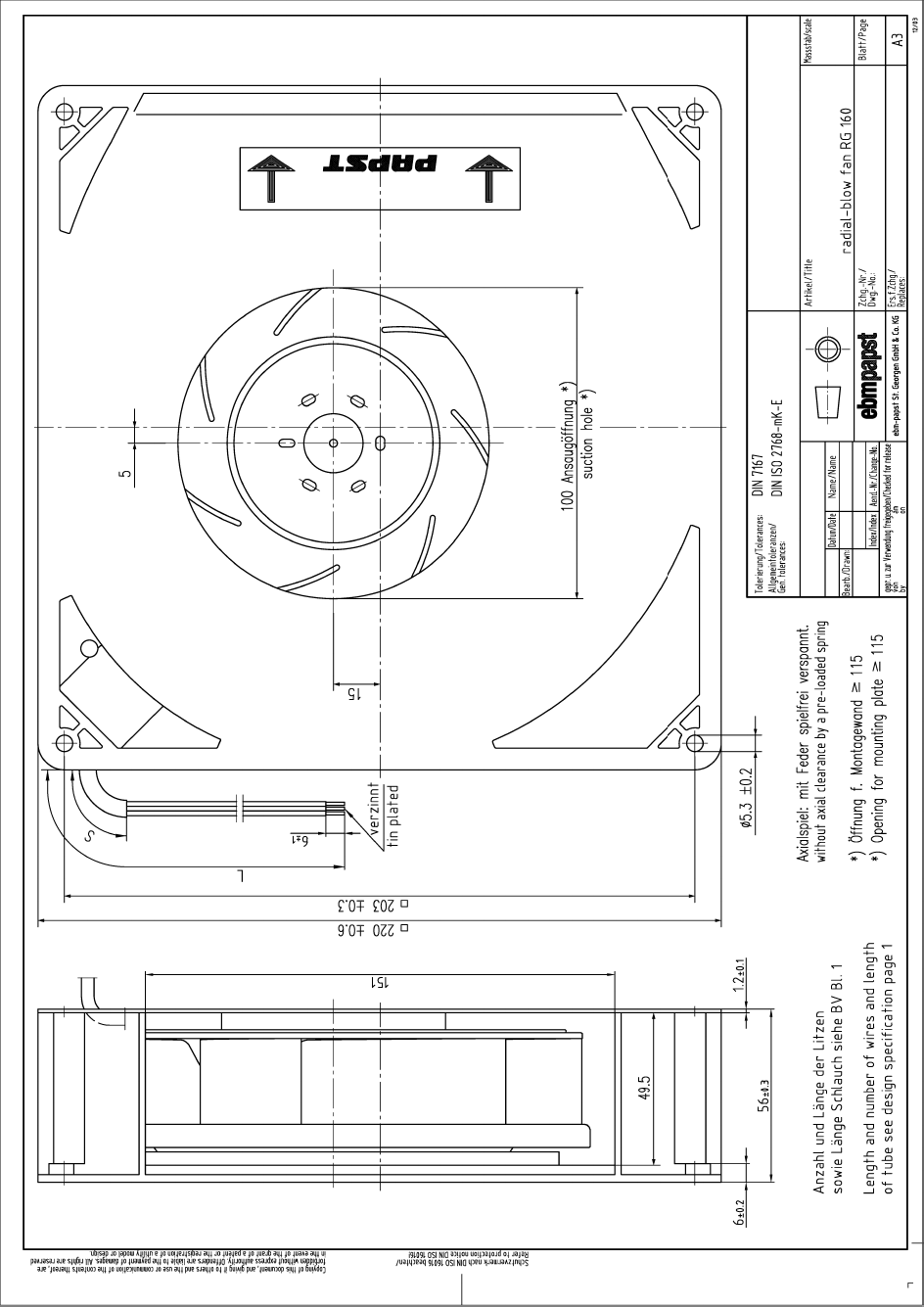
Blower DC 220x220x56mm 24V 209m³/h IP68 RG Series
2
3
4
5
6
7
8
9
10
11
1
...
...
9
10
11