Technical data
June 2008
40-258
For more information visit: www.eaton.com CA08102001E
Adjustable Frequency Drives
40
CPX9000
Enclosed Drives
Enclosure Size 9
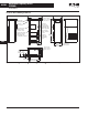
Figure 40-150. 300 – 400 hp I
L
and 250 – 350 hp I
H
480V, 250 – 400 hp I
L
and 200 – 300 hp I
H
575V — Approximate Dimensions in Inches (mm)
25.00 (635.0)
26.14 (664.0)
9.75
(247.7)
Top View
1.5 (38.1)
43.5 (1104.9)
90.00
(2286.0)
93.50
(2374.9)
4.00 (101.6) Minimum
Free Air Space Required
60.00 (1524)
Front View
Bottom View
Side View
7.46 x 15.00
(189.5 x 381.0)
Access in Top –
2 Places
8.50 x 12.00 (215.9 x 304.8)
Bottom Access
.56 (14.2) Dia.
Mounting Hole –
5 Places
27.06
(687.3)
27.36
(694.9)
90° Max.
Door
Opening
29.05
(737.9)
11.93
(303.0)
25.00
(635.0)
18.84
(478.5)
8.20
(208.3)
2.00 (50.8)
22.90 (581.7)
32.72 (831.1)
46.30 (1176.0)
54.90 (1394.5)
Key-Locking Handle
Access
Plate –
4 Places
90° Max.
Door
Opening
Finish: Enclosure – ANSI 61 Gray (Light)
Material: Enclosure and Backplate – 12 ga.
= .1046 Cold Rolled Steel
Operator
Elements
When Specified,
Mounted on
These Panels
Keypad
Intake Ventilating Slots
(Filtered on NEMA 12)
Quarter Turn Latch
(2 Places)
Flanged Disconnect
Supplied with
Circuit Breaker
When Specified