Technical data

June 2008
CA08102001E For more information visit: www.eaton.com
40-183
Adjustable Frequency Drives
40
HVX9000
Open Drives
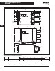
Figure 40-93. 9000X Dimensions, NEMA Type 1 and NEMA Type 12 FR10 Freestanding Drive
Table 40-286. Dimensions for 9000X, FR10 Freestanding Drive
Dia. 3
Dia. 2
Dia. 1
W5
W6
W4 W4
D4
D2
W2
W2
D5
D3
D6 D7
W3 W3 W3 W3
H1
H2
H3
W1
D1
Operator
(Shown with
Optional
Disconnect)
W6
W7
Frame
Size
Approximate Dimensions in Inches (mm) Weight
lbs. (kg)
W1 W2 W3 W4 W5 W6 W7 H1 H2 H3 D1 D2 D3 D4 D5 D6 D7 Dia. 1 Dia. 2 Dia. 3
FR10 23.43
(595)
2.46
(62.5)
4.53
(115)
.79
(20)
5.95
(151)
2.95
(75)
3.11
(79)
79.45
(2018)
74.80
(1900)
20.18
(512.5)
23.70
(602)
17.44
(443)
19.02
(483)
.47
(12)
11.22
(285)
17.60
(447)
20.08
(510)
.83
(21)
1.89
(48)
.43
(11)
857
(389)