Use and Care Manual

01
Installation Instruction 02
1
2
3
4
5
6
7
8
9
1 0
1 1
1 2
1 3
1 4
1 5
1 6
1 7
1 8
3 2
3 1
3 0
2 9
2 8
2 7
2 6
2 5
2 4
2 3
2 2
2 1
2 0
1 9
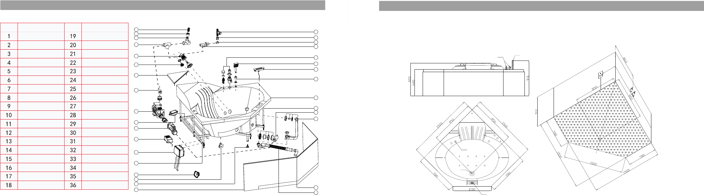
No. Name No. Name
AM168JDTSZ Component Struction
4CM conversion
Fitting nut
One way stuff
1 Inch three way
3 Inch jet
Bottom light
Waterfall
Lengthened plastic
Water pump
Junction box
Heater
Ozone generator
Power box
Stainless steel bracket
Speaker
Back jet
Bathtub leg
Skirt panel
Deodorized drain
Drain elbow
Drain
Suction
Adjustable iron
Bathtub
Hand shower base
Control panel
Hand shower
Hand shower holder
Air-distributing pipe
0.5 Inch three way
Movable connector
Drain valve
AM168 Water and wire line instruction diagram
5
0
0
350
Faucet
Hand shower
Light
Drain
Control panel









