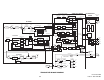
Service manual
November 2001
Part No. 001-7240-001
8-8
Charge
Pump
Bat
U101A,
U101B
U102A,
U102B
U142A/B,
U143A
300-3000 Hz
Bandpass Filter
Low-Pass Filter
Low-Pass Filter
Expander
Data Detector
Data Detector
U204B
U103A/B
U144A/B,
U143B
U201
DTMF Encoder
Audio
Gate
U202
DTMF Gate
U203A
Mic Audio Gate
U203B
Two-Pole
BP Filter
Two-Pole
BP Filter
45.3 MHz
Crystal Filter
RF Amp
IF Amp
Mixer
Q302
Q301 Q401
XFL401/402
X401
44.845 MHz
Second Injection
Switching
Switching
455 kHz
Ceramic Filters
XLF403
XLF404
WB
NB
U401
Squelch Out
RSSI Out
Audio Out
Narrow/Wide In
Squelch
Adj
VR401
Second Mixer/Detector
U201
12.800 MHz
TCXO
Reference
Divider
Main
Divider
Prescaler
Control
Div by 64/65
Prescaler
Phase
Detector
Synthesizer IC
U202
fR
fV
U203
Q201
DC-DC
Converter
Lock
Detect
Loop
Filter
C214-
C216
Receive VCO
(385-425 MHz)
Transmit VCO
(430-470 MHz)
Q501/
Q502
Q531/
Q532
Buffer
Buffers
Q503
Q533/
Q534
VCO Assembly
Rx Freq Minus
45.3 MHz
Power Amplifier Module
U101
Antenna Switch
Directional Coupler
Forward
Power
S101
D101, D102
Antenna
Rx Freq
Tx Freq
VCO Freq
Q101
Amplifier
Power Control
U102A/B,
U103
TRANSMITTER
RECEIVER
SYNTHESIZER
Low-Pass Filter
7.5VDC
Battery
L107, L108,
L110
DTMF Tones
Speaker Audio
RECEIVE AUDIO PROCESSING
RECEIVE DATA PROCESSING
Tx DATA PROCESSING
Tx AUDIO PROCESSING
POWER SUPPLIES
SMARTNET Rx/Tx DATA PROCESSING
Rx/Tx Data Sel
U141B
Low-Pass Filter
U145A/B
Test/Norm Sel
U141A
Data Type Sel
U141C
Compressor
High-Pass Filter
Limiter
Low-Pass Filter
U204AU151BU151A
U146A/B
T5V
U148A
Combiner
Tx Data
Tx Audio
Mod Balance
TCXO Modulation
VCO Modulation
Power Control
Digital
Potentiometers
U147
Rx Data
Tx Data
Reset
U207
16k x 8
EEPROM
U150
U208
MICROCOMPUTER
P17
105
P11
111
106
P16
P62
62
P10
112
RES
73
PD2
45
P12
110
P41
96
P14
108
P26
65
PE2
36
Switched Bat In
Unswitched Bat Out
Switch Driver
L5V Regulator
+5V Regulator
7.5V Supply Sw
7.5V Supply Sw
Q205B
Q205A
U205
U206
Q202
Q203
Q204
+5S Switch
T5V Switch
R5V Switch
L5V
R5V
T5V
+5S
Volume Control
Audio
Amp
U101
Internal
Speaker
Display
Display
Driver
U501
EH1
Key S0-S4
Key R0-R4
Keypad
Internal
Microphone
Power On-Off Sw
VR901A
VR901B
Sw Batt
Q206
PTT Sw
S901
Aux Sw
S903
Emer S
w
S904
Fcn Sw
S902
Q401
Q403
Q402
Buffers
PA 5
26
RF BOARD
AUDIO/LOGIC BOARD
KEYPAD/DISPLAY
BOARD
Q535
TRANSCEIVER BLOCK DIAGRAM










