Owner's manual

5
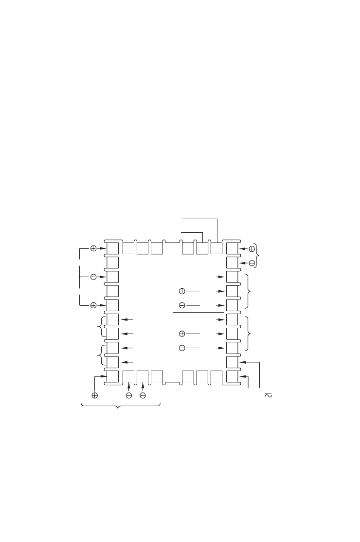
Figure 2 - Wiring
WIRING
Do not run transmitter wiring or other Class 2 wiring in the same conduit as power
leads. Use only the probe or transmitter for which the control has been
programmed. Maintain separation between wiring of sensor, auxiliary in or out, and
other wiring. See the "Secure Menu" for input selection.
Supply connections should be made in accordance with the National Electrical
Code per Article 300, and local regulations. All line voltage output circuits must
have a common disconnect and be connected to the same pole of the disconnect.
Input wiring for probe or transmitter is rated CLASS 2.
Control wiring is as shown in Figure 2 below.
Voltage
Current
Alarm 1
Contacts
Alarms 2
Contacts
24 VDC
@ 50 mA
Isolated
Pump 1
Output
Pump 2
Output
Line Input
100 to 240 VAC
50 - 400 Hz. Single PH
132 to 240 VDC 5VA
MAX. Output Ratings:
Relay: 10A. @ 240 VAC RES.
1/4 HP @ 120 VAC
1/3 HP @ 240 VAC
Alarm: 3A. @ 240 VAC RES.
P.D. 240VA, 120/240 VAC
SW. Volt.: 15 VDC @ 20 mA
NOTE:
1. For supply connections
use No. 16 AWG or larger
wires rated for at least 75°C,
or in accordance with an
equivalent national standard.
2. Maximum ambient temperature
rating 131°F (55°C)
3. Use copper conductors only
4. Terminals 1-5, 10-12, & 21-32
are class 2 'SELV'.
15 VDC
1
2
3
4
5
6
7
8
9
10
11
12
13
14
15
16
17
18
19
20
323130292827
21
22 23
24 25
26
N.O.
N.O.
COM.
COM.
N.O.
N.O.
N.C.
N.C.
COM.
COM.
CURRENT
RELAY
& SSR
290-3126
COM.
Pump1
Pump2
+
-
Option RV, RC










