Dimensional Drawing
Manuals
Brands
Dutton-Lainson Manuals
Hand Winches
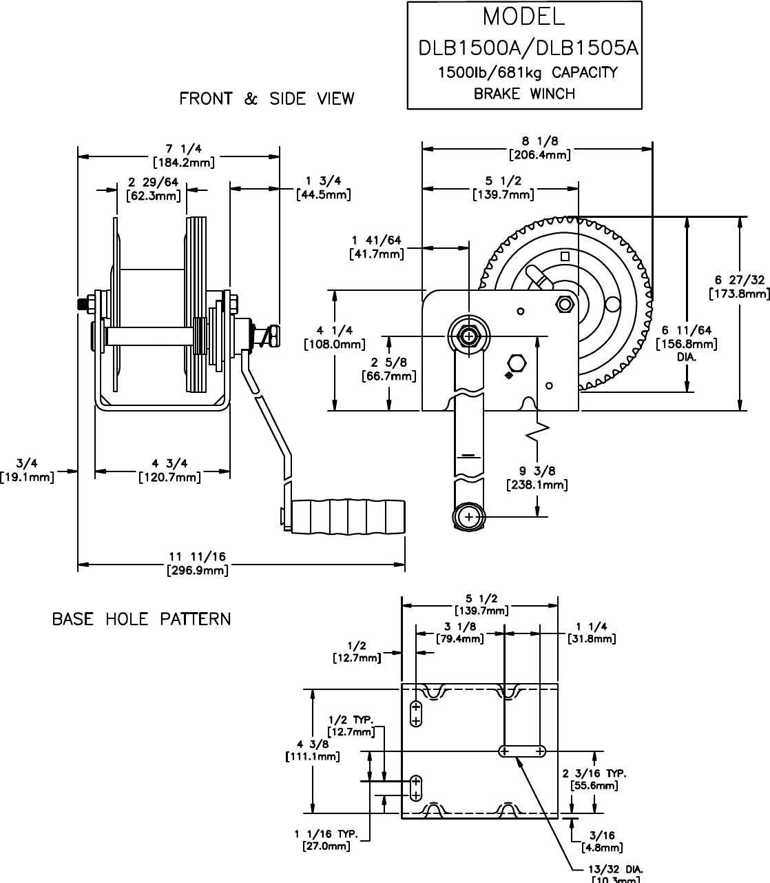
Single Speed Hand Winch with Automatic Brake — 1500-Lb. Capacity
1
1
Summary of content (1 pages)
PAGE 1