
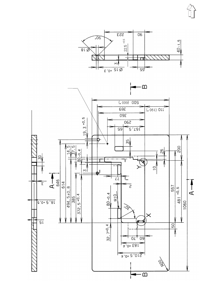
Ankörnung für Befestigung
des Gestells auf Tischplat-
tenunterseite
Ref. mark for fastening the
stand on the reserve of the
table
unbemaßte Radien R9
undimension radius R9
* auf Wunsch
* on request
Oberseite
Top side
Schnitt - Selection
B - B
Schnitt - Selection
A - A
3