Operation Manual

Table Of Contents
Anhang
Betriebsanleitung 650-16 Version 01.0 - 06/2014 127
10Anhang
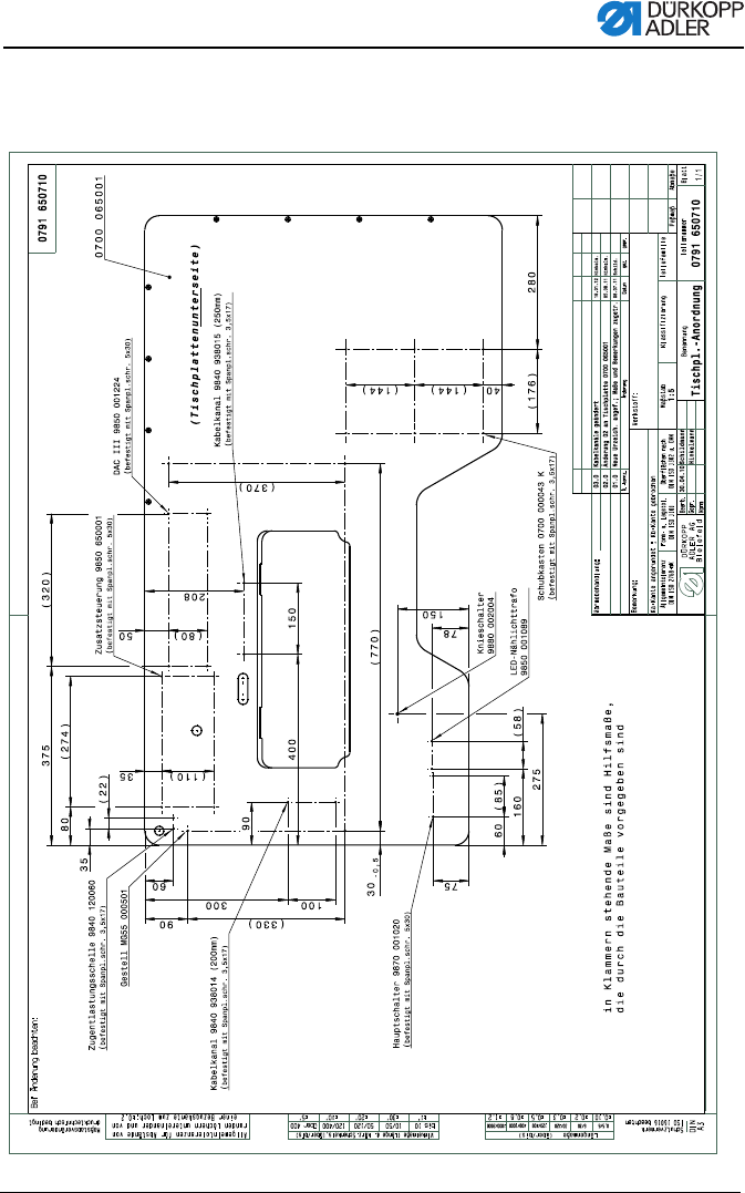
Maße zur Anfertigung einer Tischplatte