Operation Manual

Table Of Contents
Appendix
Operating Instructions 581 - 00.0 - 02/2015 121
13 Appendix
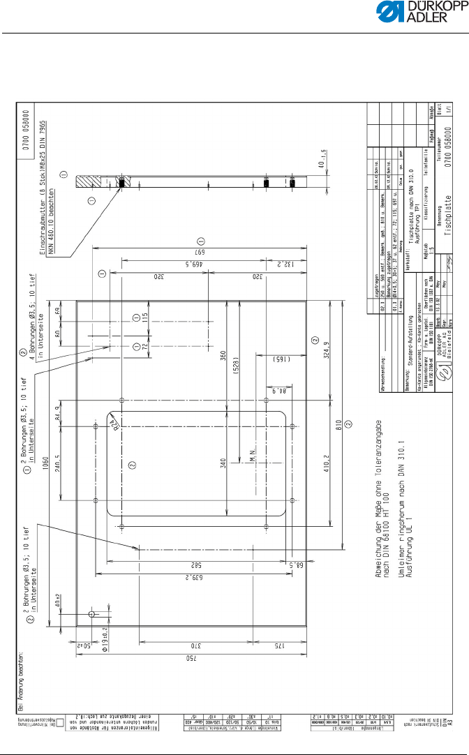
Fig. 69: Table plate