Owner Manual
Table Of Contents
- Safety
- Qualified Installing Agency
- Specifications
- Product Features
- Local Codes
- Preparing For Installation
- Unpacking
- Water Vapor: A By-Product Of Unvented Room Heaters
- Air For Combustion and Ventilation
- Installation
- Operation
- Electrical Connection
- Electrical Wiring
- Inspecting Burners
- Care And Maintenance
- Troubleshooting
- Technical Service
- Replacement Parts
- Accessories
- Service Hints
- Warranty

www.factorybuysdirect.com
9200337-01A
INSTALLATION
NOTICE: This heater is intended
for use as supplemental heat.
Use this heater along with your
primary heating system. Do not
install this heater as your pri-
mary heat source. If you have a
central heating system, you may
run system’s circulating blower
while using heater. This will help
circulate the heat throughout the
house. In the event of a power
outage, you can use this heater
as your primary heat source.
WARNING: A qualied ser-
vice person must install heater.
Follow all local codes.
WARNING: Never install the
heater
• in a bedroom or bathroom
• in a recreational vehicle
• where curtains, furniture,
clothing, or other ammable
objects are less than 36" from
the front, top, or sides of the
heater
• in high trafc areas
• in windy or drafty areas
CAUTION: This heater cre-
ates warm air currents. These
currents move heat to wall sur-
faces next to heater. Installing
heater next to vinyl or cloth wall
coverings or operating heater
where impurities (such as to-
bacco smoke, aromatic candles,
cleaning uids, oil or kerosene
lamps, etc.) in the air exist, may
cause walls to discolor.
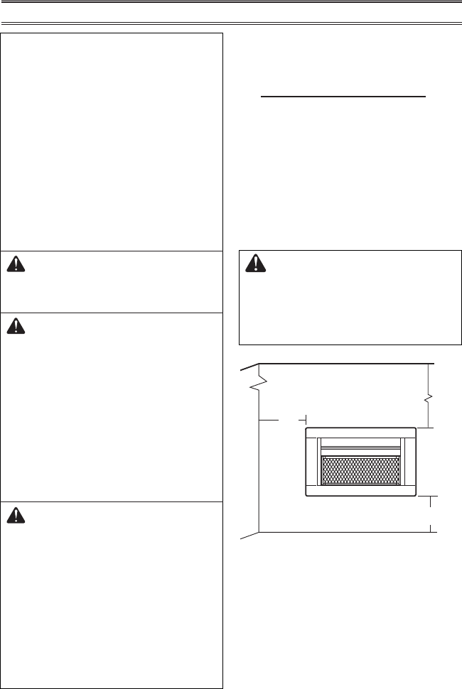
Figure 4 - Mounting Clearances as
Viewed From Front of Heater
IMPORTANT: Vent-free heaters add moisture
to the air. Although this is benecial, installing
heater in rooms without enough ventilation air
may cause mildew to form too much moisture.
See Air for Combustion and Ventilation, pages
7 and 8.
CHECK GAS TYPE
Be sure your gas supply is right for your heat-
er. Otherwise, call dealer where you bought
the heater for proper type heater.
CLEARANCES TO
COMBUSTIBLES
Carefully follow the instructions below. This
heater is a freestanding unit designed to be
mounted on a wall or set on a base.
WARNING: Maintain the
minimum clearances shown in
Figure 4. If you can, provide
greater clearances from oor,
ceiling, and joining wall.
CEILING
36"
Minimum
8"
Minimum
From
Sides of
Heater
Left
Side
Right
Side
5" Minimum to Top Surface of Carpeting,
Tile or Other Combustible Material
FLOOR
LOCATING HEATER
This heater is designed to be mounted on a
wall. For convenience and efciency, install
heater:
1. Where there is easy access for operation,
inspection, and service.
2. In the coldest part of room.










