Owner Manual
Table Of Contents
- Safety
- Qualified Installing Agency
- Specifications
- Product Features
- Local Codes
- Preparing For Installation
- Unpacking
- Water Vapor: A By-Product Of Unvented Room Heaters
- Air For Combustion and Ventilation
- Installation
- Operation
- Electrical Connection
- Electrical Wiring
- Inspecting Burners
- Care And Maintenance
- Troubleshooting
- Technical Service
- Replacement Parts
- Accessories
- Service Hints
- Warranty

www.factorybuysdirect.com
200337-01A10
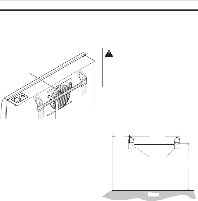
Figure 5 - Mounting Bracket Location
INSTALLATION
Marking Screw Locations
1. Tape mounting bracket to wall where
heater will be located. Make sure mount-
ing bracket is level.
WARNING: Maintain mini-
mum clearances shown in Figure
4, page 9. If you can, provide
greater clearances from oor
and joining wall.
2.
Mark screw locations on wall (see Fig-
ure 6).
Note: Mark only last hole on each
end of mounting bracket. Insert mounting
screws through these holes only.
3. Remove tape and mounting bracket from
wall.
Mounting
Bracket
(Shown with
optional
blower)
Mounting Bracket
The mounting bracket is located on back panel
of heater (see Figure 5). It has been taped
there for shipping. Remove mounting bracket
from back panel.
FASTENING HEATER TO WALL
13
1
/
8
"
Min.
16
1
/
16
"
15
3
/
4
"
Min.
Only Insert Mounting
Screws Through Last
Hole On Each End
Floor
Adjoining Wall
Figure 6 - Mounting Bracket Clearances
Methods For Attaching Mounting
Bracket To Wall
Use only the last hole on each end of mount-
ing bracket to attach bracket to wall. Attach
mounting bracket to a wall only in one of two
ways:
1. Attaching to wall stud: This method pro-
vides the strongest hold. Insert mounting
screws through mounting bracket and into
wall studs.
2. Attaching to wall anchor: This method
allows you to attach mounting bracket to
hollow walls (wall areas between studs)
or to solid walls (concrete or masonry).
Decide which method better suits your needs.
Either method will provide a secure hold for
the mounting bracket.










