Installation Sheet
Table Of Contents
©2018 DreamLine. All Rights Reserved
SLIMLINE SHOWER BASE manual Ver 5 Rev 9 03/2018
11
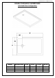
DOUBLE THRESHOLD SHOWER BASE
Left-Hand Drain Configuration
MODEL
SPECIFICATION
D (in)
W (in)
D1 (in)
W1 (in)
DLT-1034481
34"×48"
34"
48"
17"
12"
DLT-1036481
36"×48"
36"
48"
18"
12"
DLT-1036541
36"×54"
36"
54"
18"
12"
DLT-1036601
36"×60"
36"
60"
18"
12"
D
W
D1
W1










