Installation Guide
Manuals
Brands
DreamLine Manuals
Bath
Prism 36 in. x 72 in. Frameless Pivot Neo-Angle Shower Enclosure in Brushed Nickel with Neo-Angle Shower Base
11
12
13
14
15
16
17
18
19
20
©2018 DreamLine.
All Rights Reserved
SLIMLINE SHOW
ER BASE manual V
er 5 Rev 9
03/2018
10
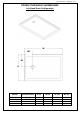
DOUBLE THRESHOLD
SHOWER
BASE
Corner Drain C
o
nfiguration
MODEL
SPECIFICATION
W (in)
C (in)
DLT
-
1032320
32"×32"
32"
12"
DLT
-
1036360
36"×36"
36"
12"
W
W
C
C
1
...
...
9
10
11
12
13
...
...
32